Script Dynamo pour visualiser et gérer les conflits entre Navisworks et Revit
H
HEXABIM
07 novembre 2024
1999 0 3 3
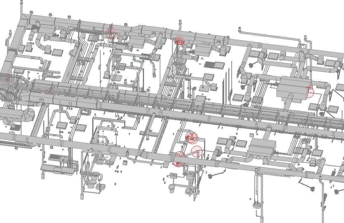
Ce script Dynamo, développé par Gary Cowan et inspiré du travail de Cesare Caoduro, permet de visualiser et gérer les conflits entre Navisworks et Revit de manière simple et efficace. En intégrant les résultats des tests de clashs de Navisworks directement dans Revit sous forme de sphères visibles, il simplifie le suivi des conflits pour les équipes internes, sans recourir à des solutions payantes.
Fonctionnement :
- Exportez les clashes de Navisworks en XML.
- Importez les données dans un fichier Excel fourni.
- Utilisez le script Dynamo pour générer des sphères de clash dans Revit, avec une vue dédiée pour identifier rapidement les conflits.
Contenu du téléchargement :
- Script Dynamo pour automatiser l’affichage des clashes dans Revit.
- Famille de Clash Sphere pour la visualisation 3D.
- Modèle Excel pour importer les données XML.
User comments
Commentaires d'utilisateurs non trouvés
Vous avez déjà un compte? Connectez-vous maintenant


