Avis expérience BIM avec REVIT STRUCTURE
Bonjour,
Je suis actuellement sur un projet BIM avec Revit Structure que je découvre et pratique au fur et à mesure en Architecture et Structure.
Il y a des choses que je ne comprend pas. Et donc, finalement, nous sommes obligés de travailler comme avant (redessiner les plans structures avec les plans archi en dessous).
Je pensais vraiment que les choses seraient plus simple et compatible.
Revit garde encore énormément de lacunes en structure contrairement aux autres spécialités du logiciel.
Pour ceux qui ont déjà bossé sur des projet assez gros en BIM, j'aimerais bien avoir leurs ressentis et des retours.
A vos clavier!!
(Faudrait que j'ouvre aux sujet pour ça d'ailleurs, histoire de répertorier la façon de travailler des différents utilisateurs)
Réponses
J'ai modélisé la structure d'un hôpital, de la phase APD à la phase PRO, et en EXE maintenant.
Je n'ai pas trouvé que c'était plus simple "qu'avant" comme tu dit, c'est une manière de travailler différente. On passe plus de temps lors de la conception et de la modélisation mais pour une qualité améliorée et du temps gagné ailleurs.
Quel est le [url=http://www.hexabim.com/blog/les-niveaux-du-bim-ou-level-of-bim-partie-1]niveau de BIM[/url] de ton projet ?
je ne suis pas spécialiste structure mais je trouve effectivement qu'il manque pas mal de choses à intégrer sur Revit structure, mais c'est un peu normal aussi car le BIM (et Revit) arrivent pour changer les habitudes, peut être d'ici quelques temps on aura pas besoin de plans !
Je ne suis pas sûr mais je pense que Graitec on sorti un pack pour Revit, justement pour améliorer ces lacunes .. à voir peut être ..
Pour ta remarque sur la façon de travailler en recréant une modélisation structure sur un fond de plan architecte, tout dépend du fichier architecte. Si tu récupères des fichiers AutoCAD, alors oui, il va falloir caler le plan architecte en fond de plan et travailler "à l'ancienne".
Par contre, si le fichier architecte est un fichier Revit, tu pourras utiliser le Copier/Contrôler de l'onglet Collaborer du ruban. De cette manière, tu peux récupérer automatiquement les niveaux, files murs et poteaux de structure et les lier avec le fichier architecte. Il y a alors une synchronisation bi-directionnelle entre architecture et structure.
J'ai pu étudier cette méthode lors de ma formation, mais pas la mettre en pratique en production, les architectes avec lesquels je travaille actuellement n'étant pas encore sous Revit.
Par contre, réalisant de nombreux projets structure en étude et en exécution, il y a un vrai gain de temps à travailler avec Revit. Mais il faut d'abord passer par la création d'un bon gabarit et la création de familles.
Merci pour ta réponse,
Pour le moment, je suis en phase esquisse donc pas encore eu le temps de faire un vrai rendu structure.
J'ai pu récupérer des plans structure d'autres bureau d'étude et les rendus sont vraiment pauvre en informations.
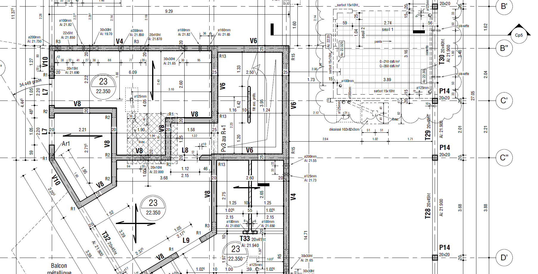
Mon objectif actuel est d'arriver à sortir un plan comparable aux rendus de notre chartes graphique actuelle sur Autocad. (La galère quoi)
Je vais prendre un exemple très bête avec Revit structure : Comment avoir un niveau NGF brut et fini de dalle inclue dans l'étiquette avec l'épaisseur de la dalle?? Avez-vous trouvé une solution? ça devrait être natif dans le logiciel!! Bref!
Second exemple : Les étiquettes des Linteaux, Semelles filantes, Traits de coupe, .... qui ne suivent pas la rotation des objets.
Pour revenir au copier/contrôler, nous avons eut droit à la formation mais cette solution bug. Pour que cela fonctionne, il faut obligatoirement que les murs de la maquette architecte soient dessinés sur leurs axes porteur sinon le logiciel décale tous les murs. Donc nous avons abandonné la solution du Copier/Contrôler. (Sur le livre REVIT de Eyrolles, La conclusion sur le Copier/Contrôler est : " Le Workflow multidisciplinaire tel que le décrit Autodesk n'est pas encore opérationnel")
Formation effectué sur Revit 2015!
(Si vous avez des solutions, je suis preneur)
(tu à du sauter mon 1er commentaire ?)
J'étais dans la même galère que toi il y à un an :)
Concernant les niveaux NGF, ce n'est pas affichable dans l'étiquette de la dalle. Certains utilisent une côte de niveau qu'ils superposent à l'étiquette de dalle. Moi j'utilise Dynamo avec une famille d'étiquette qui contient des paramètres partagés.
Le copier/contrôler est une vraie galère je suis d’accord, mais ça fonctionne avec pas mal de boulot derrière. Pour éviter que REVIT décale tous les murs, il faut copier/contrôler en récupérant les murs archi, changer les lignes de justification, enfin seulement modifier les types de murs. C'est fastidieux mais on garde la liaison dynamique avec l'archi.
Tu à aussi la solution de ne pas modéliser les murs sur la maquette structure, la contrepartie étant d'accepter de voir l'ensemble des couches sur tes plans de structure (cf image jointe).
Un gros point noir aussi est l’absence d'outil pour dessiner les traits en diagonale pour le repérage des dalles. Je planche sur une solution avec dynamo, mais le temps me manque en ce moment.
N'hésitez pas à partager des rendus graphiques (merci Julien) !
Julien G a écrit:
Salut,
(tu à du sauter mon 1er commentaire ?)
J'étais dans la même galère que toi il y à un an :)
Concernant les niveaux NGF, ce n'est pas affichable dans l'étiquette de la dalle. Certains utilisent une côte de niveau qu'ils superposent à l'étiquette de dalle. Moi j'utilise Dynamo avec une famille d'étiquette qui contient des paramètres partagés.
Le copier/contrôler est une vraie galère je suis d’accord, mais ça fonctionne avec pas mal de boulot derrière. Pour éviter que REVIT décale tous les murs, il faut copier/contrôler en récupérant les murs archi, changer les lignes de justification, enfin seulement modifier les types de murs. C'est fastidieux mais on garde la liaison dynamique avec l'archi.
Tu à aussi la solution de ne pas modéliser les murs sur la maquette structure, la contrepartie étant d'accepter de voir l'ensemble des couches sur tes plans de structure (cf image jointe).
Un gros point noir aussi est l’absence d'outil pour dessiner les traits en diagonale pour le repérage des dalles. Je planche sur une solution avec dynamo, mais le temps me manque en ce moment.
Si si, j'avais vu ton message au début.
Je connais la solution Dynamo! C'est une usine à gaz mais j'avais espoir qu'on me propose autre chose de plus simple.
Je n'ai pas eu le temps de tester beaucoup plus le Copier/Contrôler vu que le formateur n'y arrivait pas de son coté.
ça va faire 3 mois que je suis sur REVIT et que je cherche des solutions pour mes familles et étiquettes.
J'avance très doucement mais j'avance quand même! Enfin j'espère!
Je pense que le partage d'expérience pourrait m'apprendre pleins de choses.
Je suis peut-être trop pointilleux à chercher l'automatisation de tout!!
Désolé pour les rendus, je ne peux pas, il apparaitrait trop d’informations de notre charte dedans.
Après, pour ce qui est des étiquettes qui sont un peu limitées quand aux informations qu'on peut exploiter, il est certain qu'Autodesk a encore des progrès à faire. Certains automatismes apportés par Revit permettent réellement de limiter les risques d'erreurs, surtout en ce qui concerne les annotations de niveaux.
Malgré cela, on peut contourner les problèmes. J'avais d'ailleurs répondu à une discussion qui parlait des orientations d'étiquettes de semelles en proposant ma solution de grouper les libellés et ajouter un paramètre de rotation au groupe.
Pour les étiquettes de dalles, on peut facilement récupérer le niveau brut, il doit être possible de créer un paramètre de type pour le niveau fini et ainsi avoir un type d'étiquette par niveau fini. A tester.
je suis en train de créer une petite macro afin de réaliser l'annotation des dalles.
Vous trouverez ci-joint une petite vidéo présentant mon travail en l'état :
_ j'ai préalablement crée 2 dalles de 30 cm décalées en Z.
_j'annote les dalles avec une étiquettes contenant des paramètres partagés (ces paramètres ne sont pas encore mis a jour).
_pour la démonstration, je modifie le niveau et l’épaisseur des dalles.
_je lance la macro qui mets a jour toutes les étiquettes de dalle.
A terme, en compilant mon code, je pourrais éventuellement démarrer ma macro soit en appuyant sur un bouton, soit automatiquement avec la sauvegarde.
Etant débutant sur Revit, n’hésitez pas a me faire part de vos remarques, surtout sur l’étiquette de dalle.
Franck
Le lien de la vidéo d'Autodesk:
https://www.youtube.com/watch?v=3JhIiBthfDU
Je pense que dans certains cas, il ne faut se focaliser sur une famille plus ou moins complexe que quand c’est vraiment un gain de temps. Si on a beaucoup d’éléments du même type dans notre maquette, c’est utile (et ce n’est pas perdu pour d’autres projets) mais si on a l’élément que quelques fois dans la maquette, ça ne l’est pas forcément. Trop de temps passé à faire la famille pour le gain final. Ca dépend aussi de son expérience des familles.
Pour ce qui est de l’utilisation, je suis d’accord pour dire que notre façon de travailler se trouve chambouler par rapport à Autocad.
Pour ce qui est de la modélisation, pas le choix dans la plupart des cas pour l’instant, on construit à partir du plan 2D de l’archi. Ca permet de voir pas mal de problèmes sur ses plans d’ailleurs. Si on a une maquette, comme dit avant, copier/contrôler et changement des justifications pour les murs.
Pour les annotations inclinées, c’est d’autant plus étonnant qu’elle existe pour les poutres… Ca doit être possible de passer par une famille comme dit plus haut.
Tant que j’y suis, comment faites-vous pour la représentation des escaliers ? Pour l’instant, Revit affiche les escaliers à la manière américaine et pas comme nous avec les nez de marches vu de dessous en pointillé etc… Pour l’instant, je bidouille. Je créé un escalier avec la commande dédiée et je dessine des lignes bêtement pour les nez de marches, la flèche et le trait d’axe sur celles de l’escalier « revit » (je décalque quoi…) dans mon niveau inférieur. Ensuite, je copie ces lignes dans mon plancher haut. Enfin, je cache mes escaliers et efface mes lignes dans la vue en plan de mon niveau inférieur . C’est pas cool, mais ça marche bien et ce n'est pas long à faire.
désolé pour le pavé...
Pour les escaliers toujours pas de solution, les américains regardent vers le bas, pour eux pas de problème, pour nous c'est une autre paire de manche. Pour les étiquettes de dalles avec la version 2017 il est possible de mettre des formules dans les étiquettes, donc plus besoin de passer par dynamo. De plus les paramètres globaux dans le projet permettent de résoudre un tas de cas de figure, par exemple décaler en Z la poutre en fonction de l'épaisseur de la dalle !!!
Pour le copier-contrôler on peut désormais choisir dans les paramètres d'importation l'axe du porteur. Il reste à vérifier que l'archi à bien mis une seule couche dans la fonction porteur.
Effectivement, la version 2017 améliore pas mal de choses.
Pour le moment, je tourne encore sur la 2016 vu que notre fichier Archi est encore en 2016.
Mais je me tiens au courant des évolutions de la 2017 et je garde espoir d'arriver à convaincre mes collègues de passer en 2017.
Au sujet des escaliers, j'ai trouvé une combine qui fonctionne a peu près correctement.
J'isole les escaliers sur une vue en regardant vers le bas et je les affiche sur la présentation de vue du plancher haut inférieur. Ca fonctionne sur la majorité des cas, sauf quand on a des escaliers compliqués.
Pour la création d'escalier de réservations de portes ou de fenêtres une technique peut consister à les créer à partir d'une vue qui regarde vers le bas : mêmes paramètres que la vue Fondations ou Site, c'est à dire dans le type de la vue on choisit vers le bas et on règle la plage de la vue en conséquence. Ensuite on fait un glisser lâcher de cette vue en superposition dans la feuille où il y a le plancher correspondant. Prendre la précaution de faire des plans de références pour caler les deux par rapport à la grille.
revit ne sait pas dissocier le complexe dalle alvéolaire et la dalle de compression Faux
Dans la famille d'annotation en version 2016 c'est possible :
Annotation génériques métrique > Étiquettes de sols> Créer un libellé
Elevation au niveau du noyau inférieur
Elevation au niveau du noyau supérieur
Elevation en haut
Elevation à la base
Pour le reste on peut effectivement créer des paramètres partagés ou utiliser des natifs comme commentaire pour préciser des options. On ne met pas les mêmes informations en apd pro ou exe.
bon continuation dans la découverte de Revit
Mais on ne peut pas les montrer dans l'étiquette de fondations qui sert à faire le macaron de plancher suivant la méthode de Jonathan RENOU.
D’où le passage par Dynamo sur Revit 2016.
(J’attends de tester la 2017 pour refaire un vrai macaron de plancher qui sera mieux que le passage par Dynamo.)
Il est possible dans l’Étiquette de sol à partir de la 2016 de dissocier les différentes altimétries comprises dans une dalle multi-couche.
Pour le reste il faut soit utiliser des paramètres type commentaire ou des paramètres partagés
Ce sont les seules solutions que j'ai pu trouver de mon coté aussi sur REVIT.
Même combat pour les réservations et dessins de réservations en 2D.
Obligation d'isoler sur une vue les escaliers ou réservations pour pouvoirs les faire apparaitre par la suite sur les feuilles de présentation. (Les annotations 2D n'apparaissent pas sur les vues structurels hauts)
En faite, le soucis dans REVIT est que lors d'une création de famille, les symboles 2D (textes, annotations, ou familles 2D) sont affichés sur le niveau de référence qui correspond au niveau bas de la vue sur laquelle cette famille sera rentrée dans le modèle. En regardant vers le bas, les symboles ou textes sont vus. En regardant vers le haut, on ne les voit plus (mais on voit quand même les objets 3D s'ils sont dans des faux plafonds exemple ou au dessus du plan de coupe). J'ai mis beaucoup de temps à comprendre se fonctionnement dans REVIT (parce que j'aidais un collègue à faire des familles d'appareils électriques).
En électricité et en chauffage ventilation plomberie, la solution a été de bosser en regardant vers le bas avec un plan de coupe juste en dessous du plancher supérieur pour avoir toutes les annotations des familles.
En structure, on ne peut pas faire pareil donc obligé de bidouiller pour certaines choses comme les étiquettes de dalles (dynamo), les réservations, les escaliers, les impacts supérieurs (méthode de superpositions).
Mon but est d'automatiser le plus possible le travail. Quand je fais une modification, il faut que le reste bouge sans que je n'ai à intervenir. C'est ça la force de REVIT. En tout cas, c'est ce qu'ils nous vendent.
Il existe d'autres façons de travailler sur REVIT. Personnellement, je suis obliger de faire comme ça parce que la charte de la société m'oblige à le faire et donc les autres solutions m'éloigne de la charte.
Je suis d'accord, c'est du bricolage. Mais comme dit plus haut, une fois que c'est adopté et compris, ça va beaucoup plus vite les fois suivantes.
ça fait 1 an que je suis sur ce logiciel à temps plein et je commence à comprendre pas mal de choses au niveau du fonctionnement et de la logique. C'est un logiciel bête et méchant qui fait ce qu'on lui demande sans réfléchir. Donc tout est à faire sur REVIT quand on est novice.


