Calcul des surfaces SHAB
KB
Kévin Bailly
08 juin 2015
21856 0 2 0
Bonjour à tous,
Je cherche depuis longtemps à calculer une somme de pièces pour déterminer la surface habitable totale de cet ensemble, comme un appartement.
A savoir, je parviens à l'extraire par le calcul des totaux sur une nomenclature, mais graphiquement impossible de le représenter en plan.
Il y a bien la solution des zones par l'onglet "analyser", mais cela ressemble à du bricolage.
Avez-vous croiser et déjà résolu ce défi?
Merci la communauté Hexabim ;-)
Réponses
Bonjour kévin,
perso j'ai utilisé la fonctionnalité des zones aussi,
je sais pas s'il existe d'autres méthodes !
perso j'ai utilisé la fonctionnalité des zones aussi,
je sais pas s'il existe d'autres méthodes !
H
VF
Bonjour,
Merci Mohamed. Fabrice, il me semble que tu as bien une étiquette par pièce, mais as-tu une autre étiquette générale et globale pour l'appartement qui te permets d'indiquer la surface complète de celui-ci, c'est à dire la somme des pièces. La qualité de cette image est malheureusement faible et je ne peux en juger. Merci à toi.
Bonne soirée
Merci Mohamed. Fabrice, il me semble que tu as bien une étiquette par pièce, mais as-tu une autre étiquette générale et globale pour l'appartement qui te permets d'indiquer la surface complète de celui-ci, c'est à dire la somme des pièces. La qualité de cette image est malheureusement faible et je ne peux en juger. Merci à toi.
Bonne soirée
KB
Bonjour,
Concernant la méthode que j'utilise, je ne sais pas si elle est pertinente car je ne l'ai jamais confrontée...
J'utilise un paramètre partagé que j'ai nommé SHAB totale.
J'applique ce paramètre aux pièces et à un type d'étiquette de pièce qui affiche cette surface.
Je crée mes nomenclatures de SHAB par logement avec le calcul automatique de la SHAB totale.
Je reporte cette SHAB dans le paramètre SHAB totale de chaque séjour.
J'implante mon étiquette dans le séjour.
Cette méthode a deux inconvénients :
Il faut sans cesse vérifier la nomenclature pour mettre à jour les totaux (gare aux erreurs/oublis/mise à jour)
Il est nécessaire d'intégrer ces éléments dans un gabarit de projet, sinon, c'est assez fastidieux à mettre en place à chaque fois, surtout si on cherche à avoir toujours la même mise en place.
PS : je m'autorise à vous poser une question en lien avec le sujet :
N'avez-vous pas de problème avec les arrondis des totaux de surface? j'ai constaté que REVIT affiche la surface de chaque pièce arrondie ( type 3,24m2, 2,42m2 affichés : 3,2m2, 2,4m2), mais calcule le total sur la vraie valeur arrondie en suite (soit 6,7m2 pour un total de 6, 66m2) ce qui crée une incohérence entre chaque surface arrondie et le total arrondi. Je ne vois pas comment corriger cela. Auriez-vous une idée?
Bonne soirée
Concernant la méthode que j'utilise, je ne sais pas si elle est pertinente car je ne l'ai jamais confrontée...
J'utilise un paramètre partagé que j'ai nommé SHAB totale.
J'applique ce paramètre aux pièces et à un type d'étiquette de pièce qui affiche cette surface.
Je crée mes nomenclatures de SHAB par logement avec le calcul automatique de la SHAB totale.
Je reporte cette SHAB dans le paramètre SHAB totale de chaque séjour.
J'implante mon étiquette dans le séjour.
Cette méthode a deux inconvénients :
Il faut sans cesse vérifier la nomenclature pour mettre à jour les totaux (gare aux erreurs/oublis/mise à jour)
Il est nécessaire d'intégrer ces éléments dans un gabarit de projet, sinon, c'est assez fastidieux à mettre en place à chaque fois, surtout si on cherche à avoir toujours la même mise en place.
PS : je m'autorise à vous poser une question en lien avec le sujet :
N'avez-vous pas de problème avec les arrondis des totaux de surface? j'ai constaté que REVIT affiche la surface de chaque pièce arrondie ( type 3,24m2, 2,42m2 affichés : 3,2m2, 2,4m2), mais calcule le total sur la vraie valeur arrondie en suite (soit 6,7m2 pour un total de 6, 66m2) ce qui crée une incohérence entre chaque surface arrondie et le total arrondi. Je ne vois pas comment corriger cela. Auriez-vous une idée?
Bonne soirée
VB
bonjour a tous,
je ne sais si cela peux vous aider dans vos réflexions, j’utilise cette méthode pour le calcul de la SHON ( sur revit ):
[url=http://revitmastering.blogspot.fr/2012/08/surface-planchermethode-de-calcul.htm]http://revitmastering.blogspot.fr/2012/08/surface-planchermethode-de-calcul.htm[/url]l
et sinon il y a l'outil Quantification sur Revit (en anglais) mais qui permet de faire du regroupement de pièces et donc du calcul d'appartement.
En espérant avoir pu vous aider.
Fabian
je ne sais si cela peux vous aider dans vos réflexions, j’utilise cette méthode pour le calcul de la SHON ( sur revit ):
[url=http://revitmastering.blogspot.fr/2012/08/surface-planchermethode-de-calcul.htm]http://revitmastering.blogspot.fr/2012/08/surface-planchermethode-de-calcul.htm[/url]l
et sinon il y a l'outil Quantification sur Revit (en anglais) mais qui permet de faire du regroupement de pièces et donc du calcul d'appartement.
En espérant avoir pu vous aider.
Fabian
FB
Voici deux documents très intéressants que j'ai trouvé sur le site Ecobimeur, site réalisé par les étudiants de la licence pro EEC Besançon.
H
Bonjour à tous,
Je ne sais pas si cette astuce peu convenir, mais sur archicad dans ton plan:
1- Tu affectes un même ID aux zones que tu veux regrouper (par secteur, appartement ...)
2- Tu affectes le nom qui conviens à tes zones
Dans la nomenclature :
1- Tu indiques l'étage d'implantation en premier champs de ta nomenclature.
2- Tu insères la colonne ID en 2e champs
3 -Tu lui affectes le drapeau
Voilà mon astuce, cordialement,
Stéphane.
Je ne sais pas si cette astuce peu convenir, mais sur archicad dans ton plan:
1- Tu affectes un même ID aux zones que tu veux regrouper (par secteur, appartement ...)
2- Tu affectes le nom qui conviens à tes zones
Dans la nomenclature :
1- Tu indiques l'étage d'implantation en premier champs de ta nomenclature.
2- Tu insères la colonne ID en 2e champs
3 -Tu lui affectes le drapeau
Voilà mon astuce, cordialement,
Stéphane.
AS
C'est le même principe sur Revit, dans les nomenclatures on fait un tri selon un paramètre "appartement" et on aura un total de surface pour l'ensemble des pièces affectées.
H
Supers réponses, j'ai utiliser ta solution Fabian pour le calcul de SDP. J'ai dù formater moi-même le tableau pour mieux comprendre mais cela à l'air de fonctionner, tout est quantifié. Merci à toi.
Pour la SHAB, la solution de Vincent marche à travers l'attribution de paramètres partagés mais il me semble que nous laissons de côté un niveau d'automatisation. La SHAB totale est encore à taper manuellement, source d'erreurs.
Ci-joint un dossier expliquant la mise en place de paramètres partagés pour la typo, le nom et shab total des appartements.
Pour la SHAB, la solution de Vincent marche à travers l'attribution de paramètres partagés mais il me semble que nous laissons de côté un niveau d'automatisation. La SHAB totale est encore à taper manuellement, source d'erreurs.
Ci-joint un dossier expliquant la mise en place de paramètres partagés pour la typo, le nom et shab total des appartements.
KB
Bonjour Kévin,
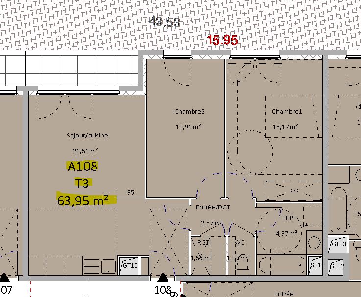
J'ai une solution utilisant Dynamo qui permet d'indiquer sur les plans le numéro de l'appartement, la typologie et la SURFACE GLOBALE de chaque appartement à l'aide d'une étiquette faite pour l'occasion.
Tu trouveras un extrait d'un de mes plans en pièce jointe avec cette étiquette en question et aussi le fichier Dynamo.
J'espère avoir répondu à ta question.
A bientôt
J'ai une solution utilisant Dynamo qui permet d'indiquer sur les plans le numéro de l'appartement, la typologie et la SURFACE GLOBALE de chaque appartement à l'aide d'une étiquette faite pour l'occasion.
Tu trouveras un extrait d'un de mes plans en pièce jointe avec cette étiquette en question et aussi le fichier Dynamo.
J'espère avoir répondu à ta question.
A bientôt
CV
Salut Clotilde,
Merci du retour, le post a quasiment trois ans et j'avais trouvé le détour à l'époque avec l'utilisation des "espaces".
Je test ton dynamo ce midi. Tu as continuer l'apprentissage de Dynamo?
Bien à toi, bonne journée
Merci du retour, le post a quasiment trois ans et j'avais trouvé le détour à l'époque avec l'utilisation des "espaces".
Je test ton dynamo ce midi. Tu as continuer l'apprentissage de Dynamo?
Bien à toi, bonne journée
KB
Haha et oui j'ai 3 ans de retard ! Je m'en suis rendu compte après coup.
Oui oui je suis en full-time Dynamo
Oui oui je suis en full-time Dynamo
CV
Oh pinaise, j'ai ouvert le dyn de clotilde j'ai rien compris j'ai refermé dynamo, bref.
La solution fastidieuse d'utiliser les espaces et zones HVAC est chiante à mettre en oeuvre mais c'est la plus native. Bon sang quand est-ce que REVIT va intégrer la possibilité de grouper de pièces avec une surface cumulée affichable et donc etiquettable, c'est pas la lune qu'on leur demande !
A bientôt et merci pour vos différentes astuces.
La solution fastidieuse d'utiliser les espaces et zones HVAC est chiante à mettre en oeuvre mais c'est la plus native. Bon sang quand est-ce que REVIT va intégrer la possibilité de grouper de pièces avec une surface cumulée affichable et donc etiquettable, c'est pas la lune qu'on leur demande !
A bientôt et merci pour vos différentes astuces.
JE
Salut Tu l'as avec l'outil Quantitification si tu veux mais il faut ensuite personnalisé les étiquettes...
Sinon des outils plans de ventes existent APP DYN de Atlancad et un autre est sur le feu
http://etudesetautomates.com/plans_de_vente.html
Gaëtan
Sinon des outils plans de ventes existent APP DYN de Atlancad et un autre est sur le feu
http://etudesetautomates.com/plans_de_vente.html
Gaëtan
GD
bonjour
un autre programme fait sur dynamo récupéré lors d'une séance du PRUG -Paris Revit User Group- offert gracieusement par notre ami julien Benoit du groupe Legendre sur la demande de Daniel Hurtbise.
Il faut savoir créer des étiquettes et des paramètres partagés.
un autre programme fait sur dynamo récupéré lors d'une séance du PRUG -Paris Revit User Group- offert gracieusement par notre ami julien Benoit du groupe Legendre sur la demande de Daniel Hurtbise.
Il faut savoir créer des étiquettes et des paramètres partagés.
CK
Bonjour,
Je déterre un peu le sujet mais depuis il y a peut-être de la nouveauté et les avis ont peut-être changé?
Je déterre un peu le sujet mais depuis il y a peut-être de la nouveauté et les avis ont peut-être changé?
VB
Bonjour Bastien,
Hélas non rien de nouveau (je n'ai pas regardé Revit 2024 mais j'en doute). Le plus simple à mon sens reste un dynamo qui renseigne dans le séjour (ou toutes les pièces) la surface totale du logement en se basant sur le nom du logement.
Se souvenir que la SHAB est calculée à 1m80 et que Revit calcule les surface en fonction du paramètre "Hauteur de calcul" du niveau associé. Attention donc à ne pas prendre les mansardes en compte en laissant la valeur zéro qui je crois est par défaut.
Corolaire du précédent point, si l'on veut avoir l'information de la surface au sol et de la SHAB, il faut deux paramètres différents.
Pour ton côté fossoyeur, je pense que le mieux aurait été de créer un nouveau sujet et mettre le lien vers celui-ci. Je pense aux personnes qui ont discuté ici il y a 8ans et reçoivent des notifications
Hélas non rien de nouveau (je n'ai pas regardé Revit 2024 mais j'en doute). Le plus simple à mon sens reste un dynamo qui renseigne dans le séjour (ou toutes les pièces) la surface totale du logement en se basant sur le nom du logement.
Se souvenir que la SHAB est calculée à 1m80 et que Revit calcule les surface en fonction du paramètre "Hauteur de calcul" du niveau associé. Attention donc à ne pas prendre les mansardes en compte en laissant la valeur zéro qui je crois est par défaut.
Corolaire du précédent point, si l'on veut avoir l'information de la surface au sol et de la SHAB, il faut deux paramètres différents.
Pour ton côté fossoyeur, je pense que le mieux aurait été de créer un nouveau sujet et mettre le lien vers celui-ci. Je pense aux personnes qui ont discuté ici il y a 8ans et reçoivent des notifications
RG


