Coordination architecture structure et poutres
AG
Adrien Gintrand
20 avril 2015
11432 0 1 0
Bonjour,
Je débute sur la collaboration BIM Archi - BIM structure, je me pose la question de la création de poutres sous le modèle Archi...
Je me place dans le cas où l'archi a créé des poutres dans snob modèle. A priori, copier-Contrôler ne permet pas de les intégrer à la maquette structure.
La seule possibilité est-elle de les "recopier"? Et dans ce cas, comment faire une coordination avec la maquette archi?
Merci pour vos réponses...
Réponses
Actuellement impossible sur les poutres ; donc faut le faire "à l'ancienne" et dialoguer avec l'archi qu'il previenne si il y a des modifs ;)
MA
On peu immaginer qu autodesk n'ai pas prevu que les archis modelisent les poutres. La coordination pluridisciplinaire se limiterait donc a de la detection de clash entre la poutre presente uniquement dans le fichier structure et les autres objets.
c'est étrange car dans des processus de collaboration IFC avec tekla structure, ce dernier autorise bien cela avec plus de categories d'objets.
il es tprobable que cela évolue avec la généralisation de la collaboration pluridisciplinaire
c'est étrange car dans des processus de collaboration IFC avec tekla structure, ce dernier autorise bien cela avec plus de categories d'objets.
il es tprobable que cela évolue avec la généralisation de la collaboration pluridisciplinaire
VB
Bonjour,
Sur mon blog > Revit-Mémo, j'ai posté un message sur ce thème [url=http://revit-memo.blogspot.fr/2014/04/revit-2014de-revit-architecture-revit.html]Titre[/url] > de Revit Architecture à Revit Structure
Je compare la fonction "Copier contrôler", à "lier fichier" Revit
Comme vous l'avez constaté, la fonction "Copier contrôler" est fausse, les murs porteurs s'alignent par défaut sur l'axe du mur composé et non sur l'axe porteur
Sur mon blog > Revit-Mémo, j'ai posté un message sur ce thème [url=http://revit-memo.blogspot.fr/2014/04/revit-2014de-revit-architecture-revit.html]Titre[/url] > de Revit Architecture à Revit Structure
Je compare la fonction "Copier contrôler", à "lier fichier" Revit
Comme vous l'avez constaté, la fonction "Copier contrôler" est fausse, les murs porteurs s'alignent par défaut sur l'axe du mur composé et non sur l'axe porteur
CD
Comme tu conclus sur ton blog christian, il est preferable de separer les couches porteuses des murs dans un autre mur que les couches non porteuses. J'ai depuis que j'utilise revit toujours préconisé cette methode qui bien qu.elle prenne un peu plus de temp a modeliser, correspond mieux a la realite constructive. Cette methode permet aussi de traiter mieux la rehabilitation dans le cas de murs existant qu'on viendrait isoler.
C'est comme modeliser les murs porteurs de niveau a niveau et non sur plusieurs niveaux afin que lors de la collaboration avec le be structure, il y ai bien des connexions structurelles aux dalles.
dans le cas de collaboration pluridisciplinaire, la maquette numerique doit être modélisée avec plus de methodes.
C'est comme modeliser les murs porteurs de niveau a niveau et non sur plusieurs niveaux afin que lors de la collaboration avec le be structure, il y ai bien des connexions structurelles aux dalles.
dans le cas de collaboration pluridisciplinaire, la maquette numerique doit être modélisée avec plus de methodes.
VB
Dans Archicad, l'export des poutres est réalisable tout comme de définir dans un type de mur ou dalle ou autres les éléments de structure tout comme de finition. Avec un simple filtre, il est donc possible de créer un MN uniquement dédiée à la structure tout comme il est possible de faire une MN complète.
Etant un objet 3D, je ne comprend pas pourquoi vous ne pouvez pas exporter une poutre dans la MN. Quel est la finalité de Autodesk en limitant l'export?! :(
Etant un objet 3D, je ne comprend pas pourquoi vous ne pouvez pas exporter une poutre dans la MN. Quel est la finalité de Autodesk en limitant l'export?! :(
AS
Bonjour Stéphane,
Le problème ne concerne pas l'export d'objet entre Revit archi et Revit structure car même logiciel et donc même format. Le BE structure récupère donc bien tout. La fonction de "Copier contrôler" permet de "monitorer" certains types d'objets (pas les poutres) afin qu'une modification d'un objet chez l'archi ou la structure (création ou déplacement d'ouverture, changement d'épaisseur d'un mur, ...) puisse être automatiquement répercuté chez l'autre (avec messages d'avertissement bien entendu). Il s'agit donc de transmission automatique de modifications sur les objets "contrôlé" dont on parle. En quelque sorte, en restant dans REVIT, on peu faire de la pré-synthèse. Contrôle qui ne marche donc pas avec les objets de type poutres ...
Concernant la modélisation séparée des couches porteuses, REVIT sait bien gérer dans un mur multicouche les propriété "structure" de certains couche, là n'est pas le problème. Le problème commence quand on parle d'échanges aller ET retour entre l'archi et la structure. Lorsqu'un mur revient vers l'archi depuis la structure, s'il provient initialement d'un mur multicouche, il y aura désaxement de ce dernier car le positionnement se fera d'axe du mur à axe du mur et non d'axe porteur à axe porteur. Le problème semble aussi exister avec Archicad lors d'export IFC vers un BE structure et qu'on veux réimporter l'IFC de la structure.
Aucun problème lorsqu'on est que dans un export dans un sens (archi vers BE)
Vincent
Le problème ne concerne pas l'export d'objet entre Revit archi et Revit structure car même logiciel et donc même format. Le BE structure récupère donc bien tout. La fonction de "Copier contrôler" permet de "monitorer" certains types d'objets (pas les poutres) afin qu'une modification d'un objet chez l'archi ou la structure (création ou déplacement d'ouverture, changement d'épaisseur d'un mur, ...) puisse être automatiquement répercuté chez l'autre (avec messages d'avertissement bien entendu). Il s'agit donc de transmission automatique de modifications sur les objets "contrôlé" dont on parle. En quelque sorte, en restant dans REVIT, on peu faire de la pré-synthèse. Contrôle qui ne marche donc pas avec les objets de type poutres ...
Concernant la modélisation séparée des couches porteuses, REVIT sait bien gérer dans un mur multicouche les propriété "structure" de certains couche, là n'est pas le problème. Le problème commence quand on parle d'échanges aller ET retour entre l'archi et la structure. Lorsqu'un mur revient vers l'archi depuis la structure, s'il provient initialement d'un mur multicouche, il y aura désaxement de ce dernier car le positionnement se fera d'axe du mur à axe du mur et non d'axe porteur à axe porteur. Le problème semble aussi exister avec Archicad lors d'export IFC vers un BE structure et qu'on veux réimporter l'IFC de la structure.
Aucun problème lorsqu'on est que dans un export dans un sens (archi vers BE)
Vincent
VB
Bonjour,
Concernant copier/contrôler, c'est effectivement assez problématique.
Il y a cependant la solution de :
-faire un copier/contrôler en gardant le même mur dans revit structure (avec le doublage par exemple)
-décaler l'axe du modèle analytique sur l'axe du porteur
-puis remplacer le mur avec doublage en le remplaçant par un mur porteur seul.
Il y a un tuto autodesk qui l'explique et cela fonctionne bien, même si lors de la coordination avec le modèle archi, Revit signale tous les changements d'axes...
Ce qui me pose problème avec le copier/contrôler, c'est plutôt les ouvertures. Les fenêtres archi ne sont pas remplacées par des fenêtres structure mais juste par des ouvertures... Du coup, lors de la cotation par exemple, impossible de récupérer automatiquement la hauteur de l'ouverture pour le plan de coffrage.
En ce qui concerne les poutres, le problème est effectivement la coordination avec l'archi (même si un passage automatique de revit archi à revit structure n'est pas à dédaigner).
Je n'ai pas encore regardé la coordination avec Revit MEP, mais à terme, la logique est de se coordonner sur les 3 modèles.
Et sur les poutres, impossible pour moi d'envoyer sur Robot une poutre du modèle structure dont l'un des appuis de rive est une autre poutre. En plus, se pose la question des poutres primaires et secondaires. Comment Revit décide-t-il laquelle est la primaire et laquelle est la secondaire... Et surtout, comment peut-on l'imposer?!
Concernant copier/contrôler, c'est effectivement assez problématique.
Il y a cependant la solution de :
-faire un copier/contrôler en gardant le même mur dans revit structure (avec le doublage par exemple)
-décaler l'axe du modèle analytique sur l'axe du porteur
-puis remplacer le mur avec doublage en le remplaçant par un mur porteur seul.
Il y a un tuto autodesk qui l'explique et cela fonctionne bien, même si lors de la coordination avec le modèle archi, Revit signale tous les changements d'axes...
Ce qui me pose problème avec le copier/contrôler, c'est plutôt les ouvertures. Les fenêtres archi ne sont pas remplacées par des fenêtres structure mais juste par des ouvertures... Du coup, lors de la cotation par exemple, impossible de récupérer automatiquement la hauteur de l'ouverture pour le plan de coffrage.
En ce qui concerne les poutres, le problème est effectivement la coordination avec l'archi (même si un passage automatique de revit archi à revit structure n'est pas à dédaigner).
Je n'ai pas encore regardé la coordination avec Revit MEP, mais à terme, la logique est de se coordonner sur les 3 modèles.
Et sur les poutres, impossible pour moi d'envoyer sur Robot une poutre du modèle structure dont l'un des appuis de rive est une autre poutre. En plus, se pose la question des poutres primaires et secondaires. Comment Revit décide-t-il laquelle est la primaire et laquelle est la secondaire... Et surtout, comment peut-on l'imposer?!
AG
Bonsoir,
Tu peux passer par l’ifc ainsi le be structure l’integre dans son modèle pour vérifier les poutres et les re modéliser pour vérification
Tu peux passer par l’ifc ainsi le be structure l’integre dans son modèle pour vérifier les poutres et les re modéliser pour vérification
JM
Bonjour,
Concernant copier/contrôler, c'est effectivement assez problématique.
Il y a cependant la solution de :
-faire un copier/contrôler en gardant le même mur dans revit structure (avec le doublage par exemple)
-décaler l'axe du modèle analytique sur l'axe du porteur
-puis remplacer le mur avec doublage en le remplaçant par un mur porteur seul.
Il y a un tuto autodesk qui l'explique et cela fonctionne bien, même si lors de la coordination avec le modèle archi, Revit signale tous les changements d'axes...
Ce qui me pose problème avec le copier/contrôler, c'est plutôt les ouvertures. Les fenêtres archi ne sont pas remplacées par des fenêtres structure mais juste par des ouvertures... Du coup, lors de la cotation par exemple, impossible de récupérer automatiquement la hauteur de l'ouverture pour le plan de coffrage.
En ce qui concerne les poutres, le problème est effectivement la coordination avec l'archi (même si un passage automatique de revit archi à revit structure n'est pas à dédaigner).
Je n'ai pas encore regardé la coordination avec Revit MEP, mais à terme, la logique est de se coordonner sur les 3 modèles.
Et sur les poutres, impossible pour moi d'envoyer sur Robot une poutre du modèle structure dont l'un des appuis de rive est une autre poutre. En plus, se pose la question des poutres primaires et secondaires. Comment Revit décide-t-il laquelle est la primaire et laquelle est la secondaire... Et surtout, comment peut-on l'imposer?!
Bonjour,
Je suis d'accord avec toi sur le changement d'axe des murs en axe porteur.
C'est une méthode que j'avais mis en place sur un projet avec des architectes (en interne). Le problème est qu'au bout d'un moment, ils ont arrêté de le faire systématiquement donc obligé de la faire à chaque fois que je récupérais le fichier pour intégrer mes éléments structurels.
Ma grande question avec REVIT aujourd'hui reste sur la façon de travailler entre maquette architecte et structure.
Obligation de créer une maquette structure différente de celle de l'architecte. Ce qui impose que les élément structurelles comme les poutres, fondations, .... ne sont pas forcément pris en compte sur la maquette archi lors du retour par manque de temps ou non maîtrises des outils structure.
On a essayé de passer par un fichier lié n'ayant que les élément de structure en plus (métal, bois, poutres, fondations, poteaux, ...) mais cela pose toujours des problèmes lors des rendus structures qui ne correspondent pas aux chartes des BE.
J'ai abandonné l'idée d'utiliser le copier/contrôler pour les raisons évoqués par Adrien. J'attends de voir si les choses évolueront dans les sens de rajouter des éléments en plus dans le copier/contrôler comme les poutres, menuiseries, fondations, ...
Je préfère prendre le fichier Archi et modifier les familles par les miennes et importer mes paramètres de projet. C'est long mais le rendu est meilleur.
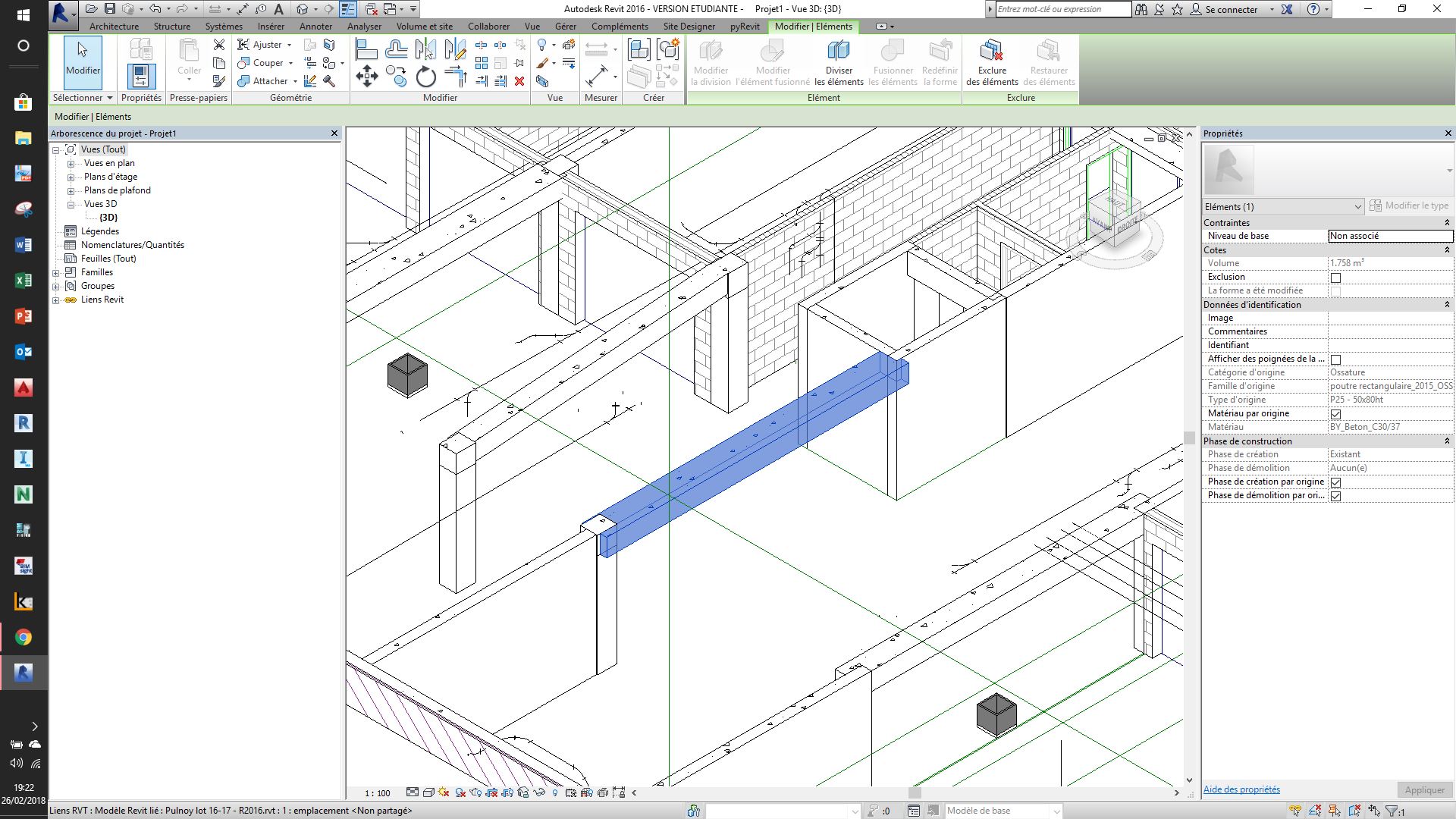
Ci dessous une proposition de WorkFlow en cours de test avec
une prof de BTS Bâtiment spécialiste en Structure Béton :
1) Insertion de la maquette Archi dans un gabarit (via Insérer, Lien Révit, ...)
2) Zone de coupe au niveau des poutres à étudier depuis la vue 3D
3) Modifier, Créer, Créer éléments, Sélection des poutres
4) Exportation vers Arche ou Robot ou ...
5) Si la maquette Archi change, il suffit de modifier
le lien du fichier lié pour que tout ce mette a jour
une prof de BTS Bâtiment spécialiste en Structure Béton :
1) Insertion de la maquette Archi dans un gabarit (via Insérer, Lien Révit, ...)
2) Zone de coupe au niveau des poutres à étudier depuis la vue 3D
3) Modifier, Créer, Créer éléments, Sélection des poutres
4) Exportation vers Arche ou Robot ou ...
5) Si la maquette Archi change, il suffit de modifier
le lien du fichier lié pour que tout ce mette a jour
VV


