Finaliser un plan de coffrage sur Revit
H
HEXABIM
10 décembre 2014
31608 0 7 0
Bonjour à tous,
je pense que certains entre nous se sont cassés des dents pour sortir des plans de coffrage sur Revit, je pense notamment aux problématiques d'affichage des impacts et l’alignement d'étiquettes impossible quand il s'agit d'objets autre que les poutres, je voulais savoir si vous avez réussi plus ou moins des plans et comment vous avez fait pour résoudre ce genre de problèmes .. ou peut être je suis à coté de la plaque et j'ai appuyé sur le mauvais bouton !
j'ai remarqué que Allplan a un rendu pas mal en terme de plans de coff/ferr !
Réponses
29 réponses
Pour écrire un commentaire, veuillezenregistrer ou log dans
Je ne rencontre pas ce gere de problèmes avec Allplan :D
De plus le rendu Allplan est libre, on peut faire ce aue l'on veut, et a partir d'un seul modele on peut générer plusieurs aspects en fonction du "type de dessin" .
Par exemple je peux dire à un mur en béton de s'afficher avec un remplissage vert pour mon plan de coffrage, et avec un remplissage gris pour mon plan d'armatures.
L'aspect de ma vu en plan va donc varier en fonction de sa définition en temps que cofffrage ou plan d'armature (ou phase pro, ou exe, ou plan archi en affichant les isolants ou non ...)
De plus le rendu Allplan est libre, on peut faire ce aue l'on veut, et a partir d'un seul modele on peut générer plusieurs aspects en fonction du "type de dessin" .
Par exemple je peux dire à un mur en béton de s'afficher avec un remplissage vert pour mon plan de coffrage, et avec un remplissage gris pour mon plan d'armatures.
L'aspect de ma vu en plan va donc varier en fonction de sa définition en temps que cofffrage ou plan d'armature (ou phase pro, ou exe, ou plan archi en affichant les isolants ou non ...)
NS
Sur Revit les impacts se gèrent assez facilement avec des filtres associés à un paramètre "niveaux de base" lui-même associé aux murs et poteaux.
Si ces filtres sont intégrés dans le gabarit de vue il suffit ensuite de supprimer les filtres de niveaux qui ne nous intéresse pas dans chaque vue.
Par contre je ne comprends pas ton problème d'alignement d'étiquettes, pour moi elles s'alignent toutes automatiquement...
Sinon un des points sur lequel on perd beaucoup de temps sur un plan de coffrage revit c'est quand on veut mettre les cotes d'élévation de dalle dans leurs symboles d'annotation.
Les 2 n'étant pas reliés, si la dalle est modifiée la cote ne suivra pas.
Si ces filtres sont intégrés dans le gabarit de vue il suffit ensuite de supprimer les filtres de niveaux qui ne nous intéresse pas dans chaque vue.
Par contre je ne comprends pas ton problème d'alignement d'étiquettes, pour moi elles s'alignent toutes automatiquement...
Sinon un des points sur lequel on perd beaucoup de temps sur un plan de coffrage revit c'est quand on veut mettre les cotes d'élévation de dalle dans leurs symboles d'annotation.
Les 2 n'étant pas reliés, si la dalle est modifiée la cote ne suivra pas.
H
Ah c'est étrange, ne peut-on pas configurer des annotations reprenant des attributs comme le niveau supérieur et inférieur d'une dalle ?
On peut facilement créer des annotations personnalisées avec Allplan, notamment pour ce cas précis. cela fonctionne aussi pour les hauteurs d’allège, mais ça c'est directement accessible depuis le clic droit de la souris :D
On peut facilement créer des annotations personnalisées avec Allplan, notamment pour ce cas précis. cela fonctionne aussi pour les hauteurs d’allège, mais ça c'est directement accessible depuis le clic droit de la souris :D
NS
Je rajoute que sur Allplan les annotations se mettent automatiquement à l'échelle du plan même dans le cas d'annotation "complexe" (texte+dessin) grâce à la définition des "sous-macros".
CM
Thomas Pouparda écrit:
Par contre je ne comprends pas ton problème d'alignement d'étiquettes, pour moi elles s'alignent toutes automatiquement...
Je n'arrive pas à appliquer une rotation sur les étiquettes, pour les poutres ça suit automatiquement mais le reste non !
Sinon un des points sur lequel on perd beaucoup de temps sur un plan de coffrage revit c'est quand on veut mettre les cotes d'élévation de dalle dans leurs symboles d'annotation.
Les 2 n'étant pas reliés, si la dalle est modifiée la cote ne suivra pas.
je sais pas si j'ai bien compris, j'ai trouvé un tuto fait par Jonathan Renou que je le salue dans le passage :
https://www.youtube.com/watch?v=r6mjqRxhw3k
H
Bonjour,
Je suis ingénieur structure dans un bureau d'études de taille moyenne. J'utilise Revit pour des plans de coffrage EXE dès que j'en ai l'opportunité.
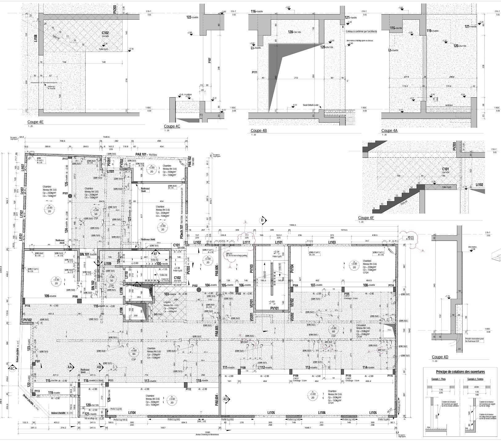
Je vous laisse découvrir un exemple de plan en EXE.
Cela fait maintenant 3 ans que j'utilise revit à environ 75% de mon temps et je trouve cela géniale. Rien que le fait de ne plus avoir à se préoccuper des styles de hachures, styles de trait, et textes m'a convaincu. Je n'ai jamais suivi de formation et au début j'ai vraiment eu beaucoup de mal à sortir un plan digne de ce nom. J'utilise assez souvent les lignes de détail, ou les textes car je n'ai pas encore pris le temps de faire les quelques familles qu'il me manque.
Je vais vous exposer ci-dessous les points faibles ou défauts de Revit (d'après mon expérience): peut être que vous aurez des réponses ou conseils concernant ces différents points ...
- je trouve le ferraillage ingérable, perso, je ne vois pas trop l'utilité de modéliser les armatures en 3D. Il m'est seulement arrivé de le faire dans le cas d'un nœud de poteau poutre très delicat mais c'est tout. J'utilse ASD ou autocad pour les armatures.
-la modelisation des escaliers avec la fonction escalier ne permet pas de représenter correctement les escaliers. Du moins il m'est impossible d'attacher la géométrie entre ma dalle et mon escalier par exemple. Je trouve ça dommage.
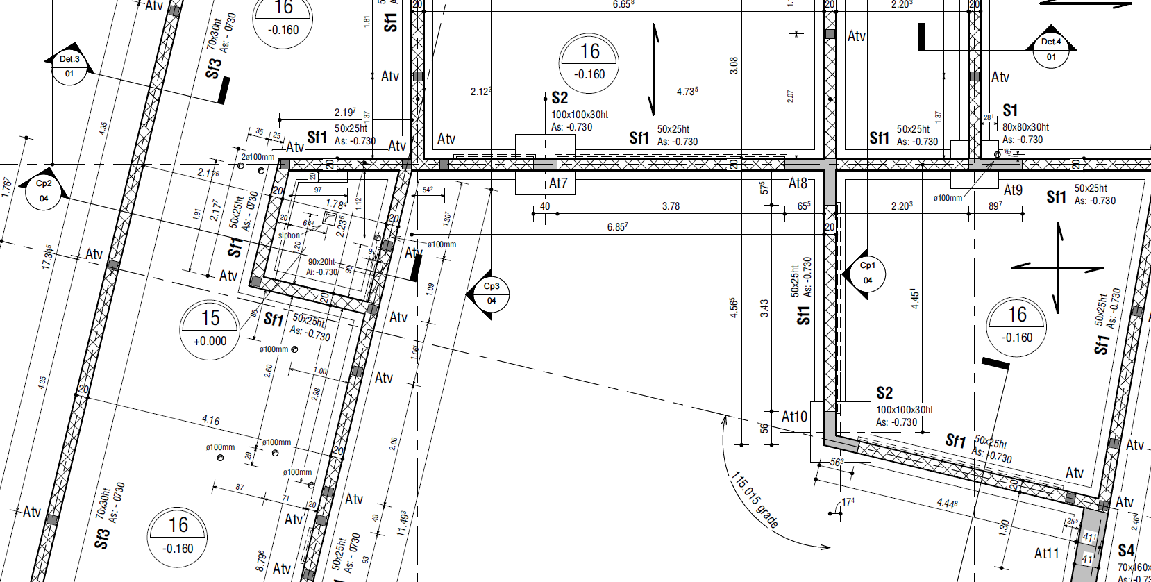
-les étiquettes d'annotations des semelles et linteaux ne s'orientent pas en fonction de l'inclinaison des murs. A moins d'avoir loupé quelques choses, je n'ai pas trouver la solution. Voir extrait de plan ci-dessous.
Voilà les quelques problèmes dont je n'ai pas encore trouvé la solution. Sinon même en EXE et lorsque la maquette n'est pas demandée Revit me permet de gagner du temps et de faire des rendus de meilleure qualité.
Je suis ingénieur structure dans un bureau d'études de taille moyenne. J'utilise Revit pour des plans de coffrage EXE dès que j'en ai l'opportunité.
Je vous laisse découvrir un exemple de plan en EXE.
Cela fait maintenant 3 ans que j'utilise revit à environ 75% de mon temps et je trouve cela géniale. Rien que le fait de ne plus avoir à se préoccuper des styles de hachures, styles de trait, et textes m'a convaincu. Je n'ai jamais suivi de formation et au début j'ai vraiment eu beaucoup de mal à sortir un plan digne de ce nom. J'utilise assez souvent les lignes de détail, ou les textes car je n'ai pas encore pris le temps de faire les quelques familles qu'il me manque.
Je vais vous exposer ci-dessous les points faibles ou défauts de Revit (d'après mon expérience): peut être que vous aurez des réponses ou conseils concernant ces différents points ...
- je trouve le ferraillage ingérable, perso, je ne vois pas trop l'utilité de modéliser les armatures en 3D. Il m'est seulement arrivé de le faire dans le cas d'un nœud de poteau poutre très delicat mais c'est tout. J'utilse ASD ou autocad pour les armatures.
-la modelisation des escaliers avec la fonction escalier ne permet pas de représenter correctement les escaliers. Du moins il m'est impossible d'attacher la géométrie entre ma dalle et mon escalier par exemple. Je trouve ça dommage.
-les étiquettes d'annotations des semelles et linteaux ne s'orientent pas en fonction de l'inclinaison des murs. A moins d'avoir loupé quelques choses, je n'ai pas trouver la solution. Voir extrait de plan ci-dessous.
Voilà les quelques problèmes dont je n'ai pas encore trouvé la solution. Sinon même en EXE et lorsque la maquette n'est pas demandée Revit me permet de gagner du temps et de faire des rendus de meilleure qualité.
JC
JC
JC
Bonjour,
Je reviens sur les problématiques d'affichage des impacts" dans Revit
Avec les filtres et une vue en fond de plan, il est possible d'obtenir des choses, mais pas complètement satisfaisant.
Le contournement que nous utilisons est la superposition sur une feuille de 2 vues (une du niveau et une des impacts)
Je reviens sur les problématiques d'affichage des impacts" dans Revit
Avec les filtres et une vue en fond de plan, il est possible d'obtenir des choses, mais pas complètement satisfaisant.
Le contournement que nous utilisons est la superposition sur une feuille de 2 vues (une du niveau et une des impacts)
PA
j'utilise exactement la même manipulation que vous pour les impacts. Je trouve ça bcp plus simple.
JC
Intéressant cette conversation. Je sais que ce n’est pas le sujet de ce post mais je ne peux m’empêcher de dire que ce que vous cherchez à faire dans Revit Structure existe déjà dans Tekla et qu’il est facile de générer des plans avec la "codification" de plan de coffrage.
De manière automatique, on peut :
- Afficher tous les éléments porteurs du niveau avec une représentation par type d’élément (Voile BA, Poteau, Poutre, Maçonnerie…),
- Mettre en pointillé l’impact du niveau supérieur,
- Afficher les étiquettes spécifiques (Nom, niveau sup inf, volume, dimension…) pour les porteurs et toutes les réservations (Portes, fenêtre, réservation dans voile et poutre).
- Générer des listes de matière.
Il reste ensuite la personnalisation du plan par le projeteur à savoir la cotation, les coupes au point stratégique et autres détails.
L’avantage est de pouvoir récupérer toutes les informations du modèle BIM dans le dessin et de pouvoir personnaliser les représentations.
De manière automatique, on peut :
- Afficher tous les éléments porteurs du niveau avec une représentation par type d’élément (Voile BA, Poteau, Poutre, Maçonnerie…),
- Mettre en pointillé l’impact du niveau supérieur,
- Afficher les étiquettes spécifiques (Nom, niveau sup inf, volume, dimension…) pour les porteurs et toutes les réservations (Portes, fenêtre, réservation dans voile et poutre).
- Générer des listes de matière.
Il reste ensuite la personnalisation du plan par le projeteur à savoir la cotation, les coupes au point stratégique et autres détails.
L’avantage est de pouvoir récupérer toutes les informations du modèle BIM dans le dessin et de pouvoir personnaliser les représentations.
AC
Bonjour,
Réponse pour le problème d'orientation des annotations, je pensais avoir trouvé la solution, pour une étiquette de porte ou fenêtre, de type 210 x 300, pour orienté l'annotation parallèlement à la façade il faut "cocher/décocher" > Rotation avec le composant dans les propriétés de la famille...
Dans Revit Structure, pour une étiquette de semelle filante, dans le propriétés de la famille il y a également des paramètres > Conserver en lecture, mais celui-ci ne donne accès qu'a l'option Horizontal / Vertical, je vais chercher encore,
Ce type de fonction doit être possible en modifiant la famille
Réponse pour le problème d'orientation des annotations, je pensais avoir trouvé la solution, pour une étiquette de porte ou fenêtre, de type 210 x 300, pour orienté l'annotation parallèlement à la façade il faut "cocher/décocher" > Rotation avec le composant dans les propriétés de la famille...
Dans Revit Structure, pour une étiquette de semelle filante, dans le propriétés de la famille il y a également des paramètres > Conserver en lecture, mais celui-ci ne donne accès qu'a l'option Horizontal / Vertical, je vais chercher encore,
Ce type de fonction doit être possible en modifiant la famille
CD
Bonjour,
Problème d'orientation des annotations...
J'ai fait plusieurs essais:
_Famille d'étiquette Ossature > Rotation avec le composant > OK
_Famille d'étiquette Mur > Rotation avec le composant > OK
Famille d'étiquette Semelle filante de fondation > Rotation avec le composant > inopérant... Bug?
Au vue des img postées > LT01 > Linteau > il s'agit d'une famille Ossature
Pour que l'étiquette s'oriente suivant le mur:
_Modifier la famille de l'étiquette
_Catégorie & paramètres de famille > Rotation avec le composant > v
Ce qui n'est pas logique à mon sens, c'est que toutes les étiquettes ne sont pas construites avec la même méthode, qu'importe que l'on soit en Architecture, Structure ou MEP, une étiquette reste une étiquette, elle doit pouvoir s'orienter suivant l'hôte, comment Autodesk justifie cela:
les étiquettes de poutres, ossatures, murs, peuvent s'orienter et pas les semelles filantes...
Christian
Problème d'orientation des annotations...
J'ai fait plusieurs essais:
_Famille d'étiquette Ossature > Rotation avec le composant > OK
_Famille d'étiquette Mur > Rotation avec le composant > OK
Famille d'étiquette Semelle filante de fondation > Rotation avec le composant > inopérant... Bug?
Au vue des img postées > LT01 > Linteau > il s'agit d'une famille Ossature
Pour que l'étiquette s'oriente suivant le mur:
_Modifier la famille de l'étiquette
_Catégorie & paramètres de famille > Rotation avec le composant > v
Ce qui n'est pas logique à mon sens, c'est que toutes les étiquettes ne sont pas construites avec la même méthode, qu'importe que l'on soit en Architecture, Structure ou MEP, une étiquette reste une étiquette, elle doit pouvoir s'orienter suivant l'hôte, comment Autodesk justifie cela:
les étiquettes de poutres, ossatures, murs, peuvent s'orienter et pas les semelles filantes...
Christian
CD
Alors j'ai un bout de réponse : l'orientation des étiquettes pour un projet démarré avec un gabarit Structure ne fonctionne pas (sur certaines catégories d'objets) !!
J'ai le soucis avec des portes...
Ce n'est pas le seul bug dans les gabarit, chaque métier a des particularité et c'est vraiment chiant...
J'ai le soucis avec des portes...
Ce n'est pas le seul bug dans les gabarit, chaque métier a des particularité et c'est vraiment chiant...
MA
Bonjour,
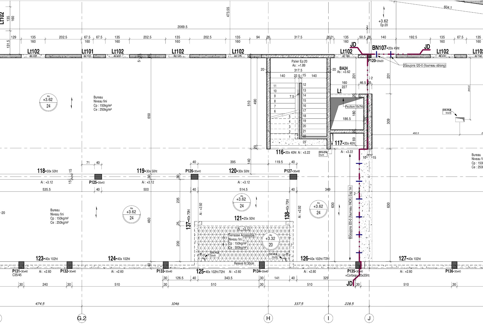
On peut contourner le problème d'orientation des étiquettes de semelles.
Pour cela, j'ai créé des étiquettes en groupant les libellés et en appliquant à ce groupe un paramètre de type angulaire.
Sur l'extrait de plan joint, les annotations de semelles filantes sont toutes des étiquettes, aucun texte n'est utilisé.
Par contre, à l'utilisation, il faut créer un type d'étiquette de semelle par angle d'inclinaison. C'est gérable s'il n'y en a pas trop.
On peut contourner le problème d'orientation des étiquettes de semelles.
Pour cela, j'ai créé des étiquettes en groupant les libellés et en appliquant à ce groupe un paramètre de type angulaire.
Sur l'extrait de plan joint, les annotations de semelles filantes sont toutes des étiquettes, aucun texte n'est utilisé.
Par contre, à l'utilisation, il faut créer un type d'étiquette de semelle par angle d'inclinaison. C'est gérable s'il n'y en a pas trop.
DD
Merci beaucoup David pour l'astuce ;)
H
Bonjour à tous,
Je vient vers vous pour les impacts. (impact de murs avec hachure)
L'utilisation des filtres pose un problème, il empêche l'utilisation de l'option ligne caché (si on veut hachuré l'impact des murs). Posant problème pour afficher correctement les pointillés des décaissés et changement de niveaux.
Une solution convenable qui à d’ailleurs été cité ci-dessus est la superposition sur une feuille de deux vue.
Cela me semble une bonne solution mais je rencontre deux problèmes:
- Le premier comment aligner les deux vues parfaitement l'une sur l'autre? Les accrochages aux objets ne fonctionnant pas sur les objets internes de le fenêtre.
- La seconde est pour l'impression, le niveau supérieur (impact du R+1 par exemple) est au dessus des éléments du RdC. Les objet dans le niveau r+1 sont pourtant avec une transparence à 100%. D’ailleurs visuellement à l'écran c'est correct mais pas à l'impression. (j'ai joint la capture de ma feuille et l'impression pdf)
Merci d'avance.
Je vient vers vous pour les impacts. (impact de murs avec hachure)
L'utilisation des filtres pose un problème, il empêche l'utilisation de l'option ligne caché (si on veut hachuré l'impact des murs). Posant problème pour afficher correctement les pointillés des décaissés et changement de niveaux.
Une solution convenable qui à d’ailleurs été cité ci-dessus est la superposition sur une feuille de deux vue.
Cela me semble une bonne solution mais je rencontre deux problèmes:
- Le premier comment aligner les deux vues parfaitement l'une sur l'autre? Les accrochages aux objets ne fonctionnant pas sur les objets internes de le fenêtre.
- La seconde est pour l'impression, le niveau supérieur (impact du R+1 par exemple) est au dessus des éléments du RdC. Les objet dans le niveau r+1 sont pourtant avec une transparence à 100%. D’ailleurs visuellement à l'écran c'est correct mais pas à l'impression. (j'ai joint la capture de ma feuille et l'impression pdf)
Merci d'avance.
J
Pour les dalles vive la 2007 et la possibilité de mettre des formules dans les annotations. Vive aussi les paramètres globaux qui vont permettre de lier la poutre a l épaisseur de la dalle.
Pour les impacts il y a plusieurs méthodes. En ce qui concerne la superposition des vues dans une feuille, il faut créer des plans de référence ou utiliser les quadrillages pour les ajuster a l outil grille que l on peut glisser dans la feuille. Ne pas utiliser la fonction aligner mais déplacer.
Pour la représentation des décaisses on peut dans la boite de propriétés de la vue afficher toutes les lignes cachées.
Pour afficher les hachures d impacts deux solutions mode filaire ou sols 100% transparent.
Pour les escaliers vu en sous face pas de solution du moins jusqu'en 2016.
Pour la rotation des étiquettes des semelles filantes voir astuce...en attendant la 201x.
Pour les impacts il y a plusieurs méthodes. En ce qui concerne la superposition des vues dans une feuille, il faut créer des plans de référence ou utiliser les quadrillages pour les ajuster a l outil grille que l on peut glisser dans la feuille. Ne pas utiliser la fonction aligner mais déplacer.
Pour la représentation des décaisses on peut dans la boite de propriétés de la vue afficher toutes les lignes cachées.
Pour afficher les hachures d impacts deux solutions mode filaire ou sols 100% transparent.
Pour les escaliers vu en sous face pas de solution du moins jusqu'en 2016.
Pour la rotation des étiquettes des semelles filantes voir astuce...en attendant la 201x.
CK
Pour les dalles vive la 2007 et la possibilité de mettre des formules dans les annotations. Vive aussi les paramètres globaux qui vont permettre de lier la poutre a l épaisseur de la dalle.
Pour les impacts il y a plusieurs méthodes. En ce qui concerne la superposition des vues dans une feuille, il faut créer des plans de référence ou utiliser les quadrillages pour les ajuster a l outil grille que l on peut glisser dans la feuille. Ne pas utiliser la fonction aligner mais déplacer.
Pour la représentation des décaisses on peut dans la boite de propriétés de la vue afficher toutes les lignes cachées.
Pour afficher les hachures d impacts deux solutions mode filaire ou sols 100% transparent.
Pour les escaliers vu en sous face pas de solution du moins jusqu'en 2016.
Pour la rotation des étiquettes des semelles filantes voir astuce...en attendant la 201x.
Pour les impacts il y a plusieurs méthodes. En ce qui concerne la superposition des vues dans une feuille, il faut créer des plans de référence ou utiliser les quadrillages pour les ajuster a l outil grille que l on peut glisser dans la feuille. Ne pas utiliser la fonction aligner mais déplacer.
Pour la représentation des décaisses on peut dans la boite de propriétés de la vue afficher toutes les lignes cachées.
Pour afficher les hachures d impacts deux solutions mode filaire ou sols 100% transparent.
Pour les escaliers vu en sous face pas de solution du moins jusqu'en 2016.
Pour la rotation des étiquettes des semelles filantes voir astuce...en attendant la 201x.
CK
Bonjour,
Je débute sur le logiciel REVIT. J'ai suivi un tuto pour réaliser une maquette Structure :
http://villagebim.typepad.com/files/gestionaxeanalytiquemurmulticouche.pdf
Avec l'outil Copier/Contrôler, je récupère les éléments porteurs de la maquette Archi. Cependant, il n'importe pas les fondations et les poutres.
Comment faire pour incorporer les éléments dans la maquette Structure ?
Quelle est votre méthode pour réaliser des plans de coffrage sur Revit ?
Autre question, sur vos extraits de plans, je vois des habillages qui sont bien faites (hauteur d'allège, cotation d'ouverture dans les murs, etc...). Où avez-vous trouvez ces familles ? Lorsque je prend l'étiquette "allège" par défaut dans la bibliothèque Revit, il ne reconnait pas l'ouverture. Comment faites-vous pour la mettre en place ?
Merci d'avance.
Je débute sur le logiciel REVIT. J'ai suivi un tuto pour réaliser une maquette Structure :
http://villagebim.typepad.com/files/gestionaxeanalytiquemurmulticouche.pdf
Avec l'outil Copier/Contrôler, je récupère les éléments porteurs de la maquette Archi. Cependant, il n'importe pas les fondations et les poutres.
Comment faire pour incorporer les éléments dans la maquette Structure ?
Quelle est votre méthode pour réaliser des plans de coffrage sur Revit ?
Autre question, sur vos extraits de plans, je vois des habillages qui sont bien faites (hauteur d'allège, cotation d'ouverture dans les murs, etc...). Où avez-vous trouvez ces familles ? Lorsque je prend l'étiquette "allège" par défaut dans la bibliothèque Revit, il ne reconnait pas l'ouverture. Comment faites-vous pour la mettre en place ?
Merci d'avance.
TV


