JONCTIONS SEMELLES FILANTES
LM
Lionel MOUELLO
11 février 2019
4337 0 1 0
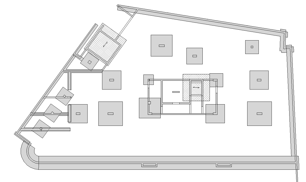
Bonjour à tous, voilà mon soucis. J'ai placé des semelles filantes de section différentes sur un projet de logement collectif. Elles sont de sections différentes et parfois excentrées ou axées. Mais je n'arrive pas à effectuer des jonctions propres.Et au même titre que j'ai un mur qui passe sur un massif et j'aimerais interrompre la semelle avant le massif. Je vous joins une capture d'écran de mon projet.
Merci d'avance pour vos réponses.
Cordialement
Merci d'avance pour vos réponses.
Cordialement
Réponses
1 réponse
Pour écrire un commentaire, veuillezenregistrer ou log dans
Il suffit de passer en vue de détails faible.
SR


