MEP Revit : Inspecteur de système n'apparait pas
H
HEXABIM
14 février 2019
8504 0 3 0
Bonjour,
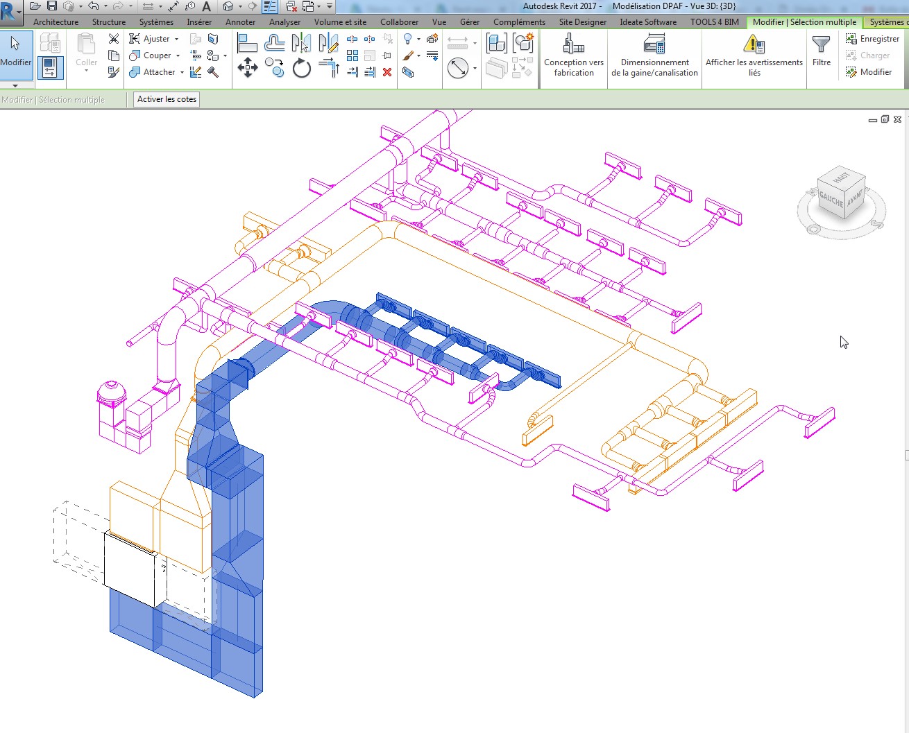
Je souhaite utiliser l'inspecteur de système dans la partie MEP de Revit. Sur certains de mes systèmes (Extraction), cet outil fonctionne. Or sur mes autres systèmes (Soufflage/Reprise) il n’apparaît pas dans la barre d'outil.
Sauriez vous pourquoi ?
J'ai mis en annexe deux images qu'illustre ma question.
Merci
Je souhaite utiliser l'inspecteur de système dans la partie MEP de Revit. Sur certains de mes systèmes (Extraction), cet outil fonctionne. Or sur mes autres systèmes (Soufflage/Reprise) il n’apparaît pas dans la barre d'outil.
Sauriez vous pourquoi ?
J'ai mis en annexe deux images qu'illustre ma question.
Merci
Réponses
sur ton image 2 tu n'a spas sélectionné le système complet (l'onglet "systeme de gaines" n'apparait pas)
MA
Merci de ta réponse Mickael. Mais malgré la sélection entière de mon système, l'inspecteur n’apparaît pas..
H
Bonjour, peut être vous autres systèmes de gaines sont divisibles...
SP
Salut,
Ton inspecteur de système n'est pas accessible mais je vois des avertissements dans ton ruban.
Qu'en est il ?? La solution est dans la résolution de tes avertissements liés à ton réseau. A coup sûr
A te lire
Gaëtan
Ton inspecteur de système n'est pas accessible mais je vois des avertissements dans ton ruban.
Qu'en est il ?? La solution est dans la résolution de tes avertissements liés à ton réseau. A coup sûr
A te lire
Gaëtan
GD
Bonjour,
Il me semble que le sens des flux (intérieur/exterieur) des bouches d'aération as aussi une influence la dessus.
Il me semble que le sens des flux (intérieur/exterieur) des bouches d'aération as aussi une influence la dessus.
SP
cela peut dépendre des bouches de ventilations. le parametre du connecteur "configuration du débit" doit etre sur "Calculée" et non pas sur "prédéfini" ou "systeme".
DG


