Modifier un symbole de coupe ?
SN
Sofiane Nabti
02 juillet 2018
3826 0 1 0
Bonjour,
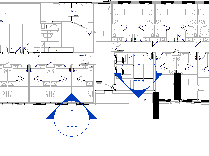
Je suis confronté à un problème à la réception d'une maquette.
Le symbole de coupe est étonnamment grand.
J'ai d'abord pensé que c'étais le projet qui était trop petit, mais les dimensions sont bien respectés.
Il y à un moyen de modifier la taille de cette famille système ?
Merci,
Je suis confronté à un problème à la réception d'une maquette.
Le symbole de coupe est étonnamment grand.
J'ai d'abord pensé que c'étais le projet qui était trop petit, mais les dimensions sont bien respectés.
Il y à un moyen de modifier la taille de cette famille système ?
Merci,
Réponses
Après vérification, c'est l'échelle de vue qu'il fallait modifier.
Problème résolu...
Problème résolu...
SN
je t'aurais effectivement dit de vérifier ça.
bravo un pas de plus dans tes connaissances de revit !
bravo un pas de plus dans tes connaissances de revit !
DG
Bonsoir Sofiane,
avec ce genre de question que tu as posé, es tu d'accord avec moi
qu'il vous a manqué pas mal d'heure de Révit en Master IN2C ?
avec ce genre de question que tu as posé, es tu d'accord avec moi
qu'il vous a manqué pas mal d'heure de Révit en Master IN2C ?
VV
"Avec ce genre question"
Tu insinues que ma question est idiote ? Que je suis idiot ?
C'était une étourderie, un oublis, un manque d'attention, dont le réflexe m'est venu que quelques minutes après.
Pas une lacune,une ignorance, un manque de connaissance.
Alors non je ne suis pas idiot, et rien à voir avec le contenu de mon Master
Tu insinues que ma question est idiote ? Que je suis idiot ?
C'était une étourderie, un oublis, un manque d'attention, dont le réflexe m'est venu que quelques minutes après.
Pas une lacune,une ignorance, un manque de connaissance.
Alors non je ne suis pas idiot, et rien à voir avec le contenu de mon Master
SN


