Nomenclature de Pièce et relevé de matériaux
BL
Benoît LECRIOUX
05 janvier 2016
11837 0 3 0
Bonjour,
sur Revit, existe-t-il un moyen de combiner une nomenclature de Pièce et un relevé de Matériau? Le but est de créer une nomenclature complète de finition d'une pièce (mur par exemple, en créant un paramètre dédié faisant appel à un matériau) et d'avoir les caractéristiques de la finition correspondante.
J'ai vu qu'il était possible d'imbriquer 2 nomenclatures, donc je me dis qu'il y a peut-être un moyen.
Réponses
Salut
Non, il n'est pas possible d'imbriquer une nomenclature de matériaux dans un nomenclature de pièce. Je te conseille d'utiliser les paramètres de finition dans les propriétés des pièces.
Non, il n'est pas possible d'imbriquer une nomenclature de matériaux dans un nomenclature de pièce. Je te conseille d'utiliser les paramètres de finition dans les propriétés des pièces.
WM
Bonjour,
Les nomenclatures et relevé des matériaux c'est assez complexe, c'est juste trouver la bonne astuce et on trouve la solution, on peut par exemple créer des étiquettes de pièces ou on peut attribuer un identifiant différent pour chaque matériel comme das la figure.
Ma version Revit est un peut obsolète, dans les versions plus récentes, les nomenclatures ont bien évoluer.
Avec Revit sont veut casser la tête on trouve toujours la solution qu'on cherche.
Les nomenclatures et relevé des matériaux c'est assez complexe, c'est juste trouver la bonne astuce et on trouve la solution, on peut par exemple créer des étiquettes de pièces ou on peut attribuer un identifiant différent pour chaque matériel comme das la figure.
Ma version Revit est un peut obsolète, dans les versions plus récentes, les nomenclatures ont bien évoluer.
Avec Revit sont veut casser la tête on trouve toujours la solution qu'on cherche.
AM
Walter MONLOUBOU a écrit:
Salut
Non, il n'est pas possible d'imbriquer une nomenclature de matériaux dans un nomenclature de pièce. Je te conseille d'utiliser les paramètres de finition dans les propriétés des pièces.
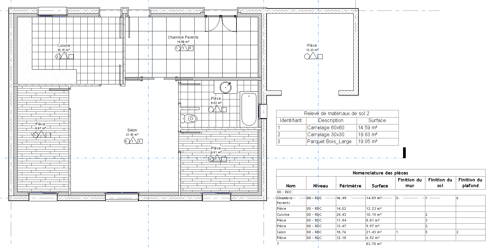
J'ai prévu d'utiliser les finitions de Pièces mais le client du projet souhaite obtenir des tableaux répertoriant toutes les finitions des Pièces mais aussi toutes les caractéristiques associées (voir exemple en image). Je pense que je vais renseigner une partie des infos dans Revit en établissant un nom de finition normé et qui renverra au reste des caractéristiques dans un fichier Excel. Mais quand j'ai vu qu'on pouvait aussi ajouter des paramètres à un matériau, je me suis dit qu'il aurait été intéressant de combiner les 2 pour avoir directement le tableau et avoir ainsi quelque chose de complet et dynamique directement sous revit, sans passer par Excel.
BL
Je n'avais pas vu ton post Antonio.
Ton exemple revient un peu à ce que je disais dans mon post précédant. Effectivement, on peut avoir 2 nomenclatures: 1 avec les quantités et une autre avec les matériaux; c'est peut-être un peu moins lisible mais ça marche.
Par contre les paramètres de Pièce demandant un simple texte, je me demande s'il ne serait pas judicieux de créer des nouveaux paramètres similaires et d'imposer de choisir un matériau? (ce travail sera fait par d'autre entreprise, je suis en train de rédiger la charte BIM).
Ton exemple revient un peu à ce que je disais dans mon post précédant. Effectivement, on peut avoir 2 nomenclatures: 1 avec les quantités et une autre avec les matériaux; c'est peut-être un peu moins lisible mais ça marche.
Par contre les paramètres de Pièce demandant un simple texte, je me demande s'il ne serait pas judicieux de créer des nouveaux paramètres similaires et d'imposer de choisir un matériau? (ce travail sera fait par d'autre entreprise, je suis en train de rédiger la charte BIM).
BL
Salut,
En créant une table de valeur (nomenclature de clés) avec les [url=http://help.autodesk.com/view/RVT/2014/FRA/?guid=GUID-75B3B9C4-6899-4DC9-8424-DFC901701B48]styles de pièces[/url],
des paramètres partagés de type : finition sol /murs/plafond
ensuite dans tes pièces tu choisis le numéro de la clé correspondant aux finitions de la pièce
Nouvelle nomenclature de pièce avec les noms finitions et toutes les infos que tu veux avec... surfaces hauteur de plafond... et j'en passe !
En créant une table de valeur (nomenclature de clés) avec les [url=http://help.autodesk.com/view/RVT/2014/FRA/?guid=GUID-75B3B9C4-6899-4DC9-8424-DFC901701B48]styles de pièces[/url],
des paramètres partagés de type : finition sol /murs/plafond
ensuite dans tes pièces tu choisis le numéro de la clé correspondant aux finitions de la pièce
Nouvelle nomenclature de pièce avec les noms finitions et toutes les infos que tu veux avec... surfaces hauteur de plafond... et j'en passe !
BD
Salut Benoit,
si tu es sur Paris et tu veux passe au bureau je te montrerai comment on a procede pour l'ENS.
Nomenclature de cle a la base bien sur :)
si tu es sur Paris et tu veux passe au bureau je te montrerai comment on a procede pour l'ENS.
Nomenclature de cle a la base bien sur :)
DH
Bonjour,
Daniel, j'apprécie ta proposition mais ça va faire un peu loin... je suis proche de Rennes...
Je poursuis mes essais sur le sujet mais je n'arrive pas à faire un choix entre l'utilisation d'un relevé de matériau et l'utilisation d'une nomenclature de clé, je m'explique:
- les paramètres créés pour les matériaux ne peuvent être que d’occurrence et pas de type, ce qui oblige à modifier ces paramètres pour chaque élément... A mon avis, j'ai dû passer à côté de quelque chose??
L'intérêt que j'y voyais était de créer des matériaux pour chaque type de finition et d'y associer les infos demandées par le client en créant des paramètres de matériaux. J'aurais pu ainsi renseigner un paramètre genre "_FinitionSol" faisant appel à un matériau dans la Pièce; et ensuite créer une nomenclature pour les Pièces mentionnant les différentes finitions (le nom des matériaux donc) et un relevé de matériau reprenant les caractéristiques du matériau (avec les paramètres de matériau créé). Cette solution permettrait de ne pas noyer les éléments sous trop de paramètres.
- la nomenclature de clé permet de renseigner des valeurs automatiquement mais encore faut-il créer des paramètres projet pour toutes les infos demandées par le client (je vous renvoie à ma pièce jointe du 06/01/15, et il y en a encore plus pour les portes...). Le travail n'est à faire qu'une seule fois mais j'ai surtout peur que cela fasse énormément de paramètres dans Pièces ou dans les Portes et que l'on s'y perde: je souhaiterais que ce soit le plus simple possible pour les entreprises. (en même temps que j'écris, je m'aperçois que ça grise les champs géré par la clé, ça permet un 1er tri quand même! :) )
Daniel, j'apprécie ta proposition mais ça va faire un peu loin... je suis proche de Rennes...
Je poursuis mes essais sur le sujet mais je n'arrive pas à faire un choix entre l'utilisation d'un relevé de matériau et l'utilisation d'une nomenclature de clé, je m'explique:
- les paramètres créés pour les matériaux ne peuvent être que d’occurrence et pas de type, ce qui oblige à modifier ces paramètres pour chaque élément... A mon avis, j'ai dû passer à côté de quelque chose??
L'intérêt que j'y voyais était de créer des matériaux pour chaque type de finition et d'y associer les infos demandées par le client en créant des paramètres de matériaux. J'aurais pu ainsi renseigner un paramètre genre "_FinitionSol" faisant appel à un matériau dans la Pièce; et ensuite créer une nomenclature pour les Pièces mentionnant les différentes finitions (le nom des matériaux donc) et un relevé de matériau reprenant les caractéristiques du matériau (avec les paramètres de matériau créé). Cette solution permettrait de ne pas noyer les éléments sous trop de paramètres.
- la nomenclature de clé permet de renseigner des valeurs automatiquement mais encore faut-il créer des paramètres projet pour toutes les infos demandées par le client (je vous renvoie à ma pièce jointe du 06/01/15, et il y en a encore plus pour les portes...). Le travail n'est à faire qu'une seule fois mais j'ai surtout peur que cela fasse énormément de paramètres dans Pièces ou dans les Portes et que l'on s'y perde: je souhaiterais que ce soit le plus simple possible pour les entreprises. (en même temps que j'écris, je m'aperçois que ça grise les champs géré par la clé, ça permet un 1er tri quand même! :) )
BL
Après d'autres essais, j'ai finalement réussi à récupérer les paramètres de matériaux dans un relevé.
Par contre, impossible de faire un relevé de matériau qui concerne les Pièces donc ça coince. J'avoue qu'appliquer un matériau à quelque chose de fictif (pièce) est un peu détourné...
Pourtant Antonio MEIRELES semble y parvenir. Vous auriez des exemples de fichier simple pour que je puisse regarder comment c'est construit?
Par contre, impossible de faire un relevé de matériau qui concerne les Pièces donc ça coince. J'avoue qu'appliquer un matériau à quelque chose de fictif (pièce) est un peu détourné...
Pourtant Antonio MEIRELES semble y parvenir. Vous auriez des exemples de fichier simple pour que je puisse regarder comment c'est construit?
BL
quote]Daniel Hurtubise a écrit:
Salut Benoit,
si tu es sur Paris et tu veux passe au bureau je te montrerai comment on a procede pour l'ENS.
Nomenclature de cle a la base bien sur :)
Bonjour, je rebondis sur la sympathique proposition de Daniel de passer au bureau.
Si il y a un problème géographique, Pourquoi ne pas utiliser teamviever (ou hangout de google) et son excellent utilitaire de réunion? qui permet de montrer à un invité lointain ce qu'on fait à l'écran. Encore mieux si on a un micro mais pas nécessaire. on peux m^me transférer des fichiers de travail via le logiciel.
J'en ai testé l'utilisation sur une formation Revit et c'était très pratique d'ouvrir 2 fenêtres : de suivre la démonstration et de modéliser en même temps.
Salut Benoit,
si tu es sur Paris et tu veux passe au bureau je te montrerai comment on a procede pour l'ENS.
Nomenclature de cle a la base bien sur :)
Bonjour, je rebondis sur la sympathique proposition de Daniel de passer au bureau.
Si il y a un problème géographique, Pourquoi ne pas utiliser teamviever (ou hangout de google) et son excellent utilitaire de réunion? qui permet de montrer à un invité lointain ce qu'on fait à l'écran. Encore mieux si on a un micro mais pas nécessaire. on peux m^me transférer des fichiers de travail via le logiciel.
J'en ai testé l'utilisation sur une formation Revit et c'était très pratique d'ouvrir 2 fenêtres : de suivre la démonstration et de modéliser en même temps.
VD
Vincent de Kok a écrit:
Bonjour, je rebondis sur la sympathique proposition de Daniel de passer au bureau.
Si il y a un problème géographique, Pourquoi ne pas utiliser teamviever (ou hangout de google) et son excellent utilitaire de réunion? qui permet de montrer à un invité lointain ce qu'on fait à l'écran. Encore mieux si on a un micro mais pas nécessaire. on peux m^me transférer des fichiers de travail via le logiciel.
J'en ai testé l'utilisation sur une formation Revit et c'était très pratique d'ouvrir 2 fenêtres : de suivre la démonstration et de modéliser en même temps.
Salut,
effectivement je n'y avais pas pensé... J'utilisais Link (Microsoft, pack office)dans mon ancienne entreprise, c'était très pratique.
Maintenant il me reste à voir du côté de mon service informatique qui conserve l'exclusivité de l'utilisation de ce genre de logiciel...
BL
Benoit Dargent a écrit:
Salut,
En créant une table de valeur (nomenclature de clés) avec les [url=http://help.autodesk.com/view/RVT/2014/FRA/?guid=GUID-75B3B9C4-6899-4DC9-8424-DFC901701B48]styles de pièces[/url],
des paramètres partagés de type : finition sol /murs/plafond
ensuite dans tes pièces tu choisis le numéro de la clé correspondant aux finitions de la pièce
Nouvelle nomenclature de pièce avec les noms finitions et toutes les infos que tu veux avec... surfaces hauteur de plafond... et j'en passe !
Il semble en revanche impossible de faire apparaître la valeur de la clé dans une étiquette non? (paramètres partagés inaccessibles)
J'aurai voulu utiliser une nomenclature de clé pour imposer une liste de nom de local (utile pour la GMAO du client) et mettre cette valeur dans une étiquette. Il existe peut-être une parade? Est-il possible de créer un paramètre partagé qui reprendrait automatiquement cette valeur?
BL
Effectivement, par contre tu peux les pousser dans un parametre partages tres facilement avec Dynamo
DH
Effectivement, par contre tu peux les pousser dans un parametre partages tres facilement avec Dynamo
DH
Ah ça m'intéresse ça! :) Malheureusement je ne dispose pas de la moindre compétence sur Dynamo même si c'est simple... :( Je peux te demander le visuel pour tenter de le reproduire?
Sinon, concernant le relevé de matériau sur les pièces, je pense avoir trouver l'astuce (:) !) grâce à un échange avec Antonio, mais il faut encore que je la teste sur un cas concret (pas avant fin de semaine prochaine). Si ça fonctionne, je tâcherai de vous la partager.
Sinon, concernant le relevé de matériau sur les pièces, je pense avoir trouver l'astuce (:) !) grâce à un échange avec Antonio, mais il faut encore que je la teste sur un cas concret (pas avant fin de semaine prochaine). Si ça fonctionne, je tâcherai de vous la partager.
BL
DH
J'ai preparer un exemple pour le prochain PRUG, le 28 janvier :)
DH
Merci Daniel! :)
J'essaie cela dès que j'ai un peu de temps.
J'essaie cela dès que j'ai un peu de temps.
BL
Benoit,
J'ai fonctionné par paramètres partagés, styles de paramètre par clés de valeur. Je préfers également gérer ces paramètres directement sur les tableaux qui te permettent de traiter rapidement une plus grande quantité de valeur.
Je suis également intéréssé néamoins par la proposition de Daniel Hurtubise si un petit tuto de démo circule
Bonne journée à tous
J'ai fonctionné par paramètres partagés, styles de paramètre par clés de valeur. Je préfers également gérer ces paramètres directement sur les tableaux qui te permettent de traiter rapidement une plus grande quantité de valeur.
Je suis également intéréssé néamoins par la proposition de Daniel Hurtubise si un petit tuto de démo circule
Bonne journée à tous
KB
Je pensais avoir trouvé la parade pour utiliser le relevé de matériaux mais après essai ça ne fonctionne finalement pas (mon 1er test était biaisé par un matériau présent dans un élément autre qu'une Pièce...).
Il aurait fallu pouvoir faire un relevé de tous les matériaux utilisés dans le projet mais Revit n'inclue pas ceux qui sont associés à des éléments fictifs tels que les Pièces. Dommage...
Je reste donc sur la solution des tables de valeurs (nomenclature de clé) qui fonctionne très bien.
Il aurait fallu pouvoir faire un relevé de tous les matériaux utilisés dans le projet mais Revit n'inclue pas ceux qui sont associés à des éléments fictifs tels que les Pièces. Dommage...
Je reste donc sur la solution des tables de valeurs (nomenclature de clé) qui fonctionne très bien.
BL
Bonjour Benoit,
Sans faire complètement ce que tu souhaites, il y a l'extension gratuite (pour ceux en souscription) Roombook Areabook Buildingbook. Il "scanne" les pièces et est capable d'extraire tous les matériaux de finition des faces de parois qui entourent les pièces et d'en extraire leur surfaces. Il fait d'autre choses aussi sympa. Il exporte les quantités dans Excel. je crois que la dernière version 2016 est en français, je n'ai pas encore vérifié. Ci-dessous lien vers une vidéo de démo.
https://www.youtube.com/watch?v=OPsLoLnSvAA
Sans faire complètement ce que tu souhaites, il y a l'extension gratuite (pour ceux en souscription) Roombook Areabook Buildingbook. Il "scanne" les pièces et est capable d'extraire tous les matériaux de finition des faces de parois qui entourent les pièces et d'en extraire leur surfaces. Il fait d'autre choses aussi sympa. Il exporte les quantités dans Excel. je crois que la dernière version 2016 est en français, je n'ai pas encore vérifié. Ci-dessous lien vers une vidéo de démo.
https://www.youtube.com/watch?v=OPsLoLnSvAA
VB


