REVIT - Étiquette personnalisée (poids / volume)
RL
Romain Laurent
27 mars 2017
11083 0 2 0
Bonjour à tous
J'essaye actuellement de créer une étiquette dans REVIT pour récupérer le poids d'un élément. Ou du moins le volume.
Je n'arrive pas à le récupérer autrement que dans une nomenclature et je n'arrive pas à le réintégrer dans une étiquette.
Le but étant d'annoter directement des éléments dans une vue pour chaque éléments (Pieux, semelles, poteaux, poutres, etc)
Pour info: peu d'éléments ont été créé via les familles systèmes (projet d'infrastructure, partie préfabriquées à géométrie complexe, etc), la plupart ont été conçus avec des composants in situ.
Merci par avance de vos retour.
Romain
J'essaye actuellement de créer une étiquette dans REVIT pour récupérer le poids d'un élément. Ou du moins le volume.
Je n'arrive pas à le récupérer autrement que dans une nomenclature et je n'arrive pas à le réintégrer dans une étiquette.
Le but étant d'annoter directement des éléments dans une vue pour chaque éléments (Pieux, semelles, poteaux, poutres, etc)
Pour info: peu d'éléments ont été créé via les familles systèmes (projet d'infrastructure, partie préfabriquées à géométrie complexe, etc), la plupart ont été conçus avec des composants in situ.
Merci par avance de vos retour.
Romain
Réponses
Bonjour,
Si c'est une information de la famille (famille de composants standard .rfa ou In situ) que tu veux récupérer, il te faut créer ta famille avec des paramètres partagés. Concernant les familles système (poteau, poutre, mur...) si tu n'arrives pas à retrouver ton paramètre dans les libellées proposé par revit il te faudra alors utiliser un dynamo.
Peux être que les structureux ont d'autres solutions je sais que l’étiquetage structure et parfois différents que nous en MEP.
Bon courage
Si c'est une information de la famille (famille de composants standard .rfa ou In situ) que tu veux récupérer, il te faut créer ta famille avec des paramètres partagés. Concernant les familles système (poteau, poutre, mur...) si tu n'arrives pas à retrouver ton paramètre dans les libellées proposé par revit il te faudra alors utiliser un dynamo.
Peux être que les structureux ont d'autres solutions je sais que l’étiquetage structure et parfois différents que nous en MEP.
Bon courage
NH
Bonjour et merci de ta réponse.
J'ai un peu cherché du côté des paramètres partagés, et à moins de le créer soit même je ne le trouve pas. Et quand bien même c'est une information qui ne se calcule pas automatiquement (problème de compatibilité d'unités).
Mon but étant que la valeur soit inscrite dans une étiquette, quitte à calculer le poids, autant que je le mette dans un texte simple.
Merci de ton concours.
J'ai un peu cherché du côté des paramètres partagés, et à moins de le créer soit même je ne le trouve pas. Et quand bien même c'est une information qui ne se calcule pas automatiquement (problème de compatibilité d'unités).
Mon but étant que la valeur soit inscrite dans une étiquette, quitte à calculer le poids, autant que je le mette dans un texte simple.
Merci de ton concours.
RL
Il est possible aussi d'utiliser des formules, le volume peux être récupérer, il suffit de renseigner un paramètre masse volumique et d'utiliser une formule dans le paramètre poids. ton étiquette ce remplira toute seul 
NH
Bonjour,
Je pense que tu souhaite afficher dans une étiquette le volume qui s'affiche dans l'onglet "Propriétés" lors de la sélection d'un Composant In-Situ de catégorie "Modèle Générique".
Or, il n'est pas possible de créer une étiquette de type "Modèle Générique" reprenant ce paramètre "Volume".
La méthode consiste à changer la catégorie de tes composants in-situ, par exemple en Sols ou Murs, et de créer l'étiquette associée (de type Murs ou Sols ) reprenant le volume.
Une autre méthode consisterai à convertir tes composants In-Situ en Éléments ( Parts )
( cf PJ )
Si tu souhaite ensuite calculer et afficher un poids, grâce à ce même volume, il te faut, comme l'explique Nicolas, passé par une formule et un paramètre partagé, paramètre partagé qui sera repris dans ton étiquette pour l'affichage
Cordialement
Je pense que tu souhaite afficher dans une étiquette le volume qui s'affiche dans l'onglet "Propriétés" lors de la sélection d'un Composant In-Situ de catégorie "Modèle Générique".
Or, il n'est pas possible de créer une étiquette de type "Modèle Générique" reprenant ce paramètre "Volume".
La méthode consiste à changer la catégorie de tes composants in-situ, par exemple en Sols ou Murs, et de créer l'étiquette associée (de type Murs ou Sols ) reprenant le volume.
Une autre méthode consisterai à convertir tes composants In-Situ en Éléments ( Parts )
( cf PJ )
Si tu souhaite ensuite calculer et afficher un poids, grâce à ce même volume, il te faut, comme l'explique Nicolas, passé par une formule et un paramètre partagé, paramètre partagé qui sera repris dans ton étiquette pour l'affichage
Cordialement
FH
Merci pour vos réponses.
Je m'en vais tester tout ça. Pour la formule Volume x Masse volumique, comment faites-vous pour contourner les unités? À chaque fois, REVIT m'annonce une incompatibilité des unités.
Je m'en vais tester tout ça. Pour la formule Volume x Masse volumique, comment faites-vous pour contourner les unités? À chaque fois, REVIT m'annonce une incompatibilité des unités.
RL
En effet, Revit est très pointilleux concernant les unités.
Pour ton cas, il faut :
Paramètre de type "Masse (kg) " (catégorie Structure) = Paramètre de type "Densité de la masse (kg/m3)" x Paramètre de type "Volume (m3)"
Pour ton cas, il faut :
Paramètre de type "Masse (kg) " (catégorie Structure) = Paramètre de type "Densité de la masse (kg/m3)" x Paramètre de type "Volume (m3)"
FH
Tout d'abord merci à tous pour vos réponses.
J'ai réussi à récupérer le volume et le poids pour un composant de sol in-situ et ça tombe bien j'avais un tablier à faire.
Par contre, ce même tablier est préfa, j'ai voulu utilisé les éléments et modifier la catégorie de mon étiquette pour qu'elle s'adapte aux éléments mais elle ne se met pas à jour.
D'ailleurs au passage, j'ai renseigné moi même la valeur de la densité de la masse, est-il possible de la récupérer directement du matériaux qu'on a affecté au composant?
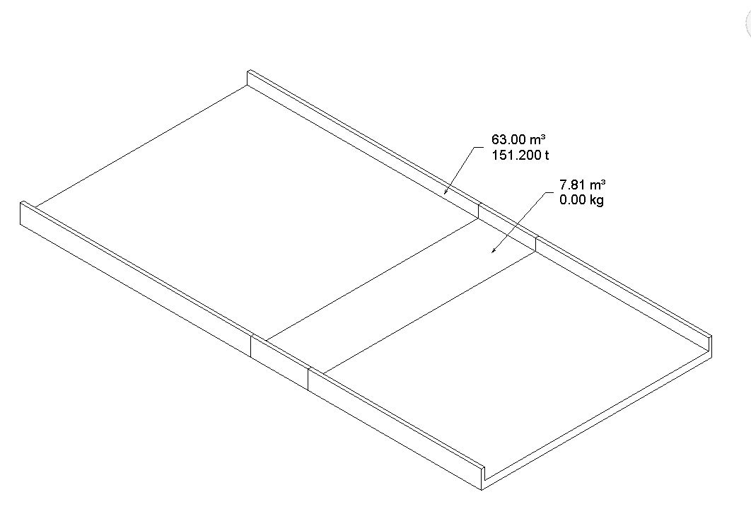
Si besoin de plus de "visuels", n'hésitez pas.
Merci d'avance.
J'ai réussi à récupérer le volume et le poids pour un composant de sol in-situ et ça tombe bien j'avais un tablier à faire.
Par contre, ce même tablier est préfa, j'ai voulu utilisé les éléments et modifier la catégorie de mon étiquette pour qu'elle s'adapte aux éléments mais elle ne se met pas à jour.
D'ailleurs au passage, j'ai renseigné moi même la valeur de la densité de la masse, est-il possible de la récupérer directement du matériaux qu'on a affecté au composant?
Si besoin de plus de "visuels", n'hésitez pas.
Merci d'avance.
RL
Le fait de changer la catégorie de l'étiquette ne suffit pas.
Il faut mettre à jour ton libellé et ta formule calculée.
Le paramètre "Volume d'un sol" doit être différent du paramètre "Volume d'un élément" pour le logiciel.
Concernant ta question sur les informations "Physique" de ton matériau, techniquement Revit ne propose pas d'utiliser comme tu le souhaite ces informations. Il est surement possible via un plugin / dynamo, d'utiliser ces informations pour faire des calculs
Cdlt
Il faut mettre à jour ton libellé et ta formule calculée.
Le paramètre "Volume d'un sol" doit être différent du paramètre "Volume d'un élément" pour le logiciel.
Concernant ta question sur les informations "Physique" de ton matériau, techniquement Revit ne propose pas d'utiliser comme tu le souhaite ces informations. Il est surement possible via un plugin / dynamo, d'utiliser ces informations pour faire des calculs
Cdlt
FH
Le fait de changer la catégorie de l'étiquette ne suffit pas.
Il faut mettre à jour ton libellé et ta formule calculée.
Le paramètre "Volume d'un sol" doit être différent du paramètre "Volume d'un élément" pour le logiciel.
Oui c'est ce que j'ai fait.
J'arrive à récupérer le volume de l'élément (part) mais pas son poids. Il m'est impossible d'ajouter un paramètre dans les éléments. Et Il semblerait qu'il ne récupère pas ceux de l'hôte.
Concernant ta question sur les informations "Physique" de ton matériau, techniquement Revit ne propose pas d'utiliser comme tu le souhaite ces informations. Il est surement possible via un plugin / dynamo, d'utiliser ces informations pour faire des calculs
Je trouve ça un peu dommage. L'information est là et on ne peux pas la récupérer
RL


