Revit : comment faire apparaître le linteau d'une fenêtre?
MD
Médéric DUVAL
18 février 2016
18682 0 9 0
Bonjour à tous,
Mon entreprise souhaite passé à l'air du BIM et de Revit, mais nous rencontrons quelque problèmes.
Lors de la réalisation d'ouverture de porte ou de fenetre, je n'arrive pas a faire apparaître de Linteau.
J'ai essayé de créer une famille imbriquée mais je ne suis pas parvenu faire fonctionner l'ensemble .
Avez vous des familles déjà crées, ou un tutoriel pour le réaliser.
merci d'avance.
Médo
Mon entreprise souhaite passé à l'air du BIM et de Revit, mais nous rencontrons quelque problèmes.
Lors de la réalisation d'ouverture de porte ou de fenetre, je n'arrive pas a faire apparaître de Linteau.
J'ai essayé de créer une famille imbriquée mais je ne suis pas parvenu faire fonctionner l'ensemble .
Avez vous des familles déjà crées, ou un tutoriel pour le réaliser.
merci d'avance.
Médo
Réponses
33 réponses
Pour écrire un commentaire, veuillezenregistrer ou log dans
Bonjour Médéric,
Qu'as tu essayé de réaliser exactement comme famille imbriquée ?
Qu'essayes tu de produire ? Et qu'est ce qui ne marche pas ?
Qu'as tu essayé de réaliser exactement comme famille imbriquée ?
Qu'essayes tu de produire ? Et qu'est ce qui ne marche pas ?
JB
Bonjour,
Je voudrais imbriquer une famille linteau avec une famille de fenetre. Le but est de pouvoir créer par la suite une étiquette ou je pourrai retrouvé la dimension et l'arase inférieur du Linteau.
Et par la même occasion quand je coupe dans ma fenetre que le linteau ne soit pas noyé dans le mur mais bien apparent.
merci de ton aide.
Je voudrais imbriquer une famille linteau avec une famille de fenetre. Le but est de pouvoir créer par la suite une étiquette ou je pourrai retrouvé la dimension et l'arase inférieur du Linteau.
Et par la même occasion quand je coupe dans ma fenetre que le linteau ne soit pas noyé dans le mur mais bien apparent.
merci de ton aide.
MD
Bonjour,
Pourquoi ne pas utiliser l'outil poutre pour faire votre linteau ? Cela me parait plus logique sur le plan structure et pour récupérer les informations sous forme d'étiquette ou de nomenclature. La fenêtre en structure ne sert qu à faire des réservations.
Pourquoi ne pas utiliser l'outil poutre pour faire votre linteau ? Cela me parait plus logique sur le plan structure et pour récupérer les informations sous forme d'étiquette ou de nomenclature. La fenêtre en structure ne sert qu à faire des réservations.
CK
Bonjour Christophe,
pour 2 raisons je n'utilises pas l'outil poutre :
- je n'arrive pas a faire apparaître le linteau que ce soit dans la coupe ou l'élévation. (exemple linteau béton dans un mur en maçonnerie)
- Pour que la longueur du linteau se définissent automatiquement en fonction de l'ouverture de la fenêtre.
Merci pour ton aide.
pour 2 raisons je n'utilises pas l'outil poutre :
- je n'arrive pas a faire apparaître le linteau que ce soit dans la coupe ou l'élévation. (exemple linteau béton dans un mur en maçonnerie)
- Pour que la longueur du linteau se définissent automatiquement en fonction de l'ouverture de la fenêtre.
Merci pour ton aide.
MD
peut tu montrer ta famille un Screenshots ?
as-tu fait un vide autour de ton linteau pour que le mur recevant ta famille de fenetre vide l'ouverture et le linteau ?
as-tu fait un vide autour de ton linteau pour que le mur recevant ta famille de fenetre vide l'ouverture et le linteau ?
MA
Bonjour Mickael,
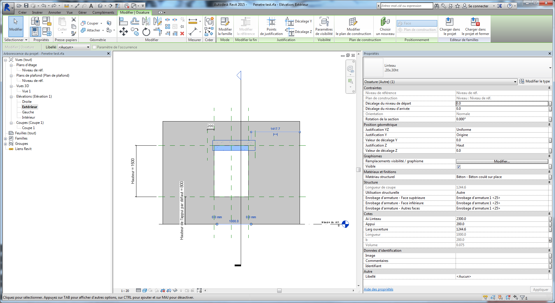
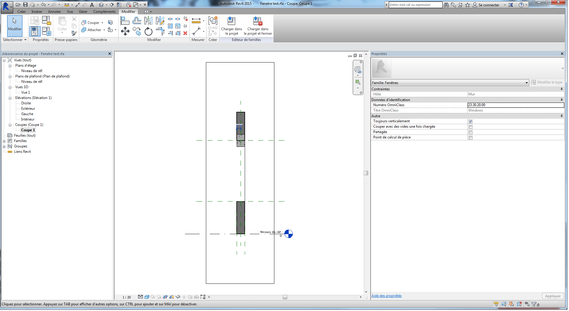
Voila 2 screen, qui montre ou j'en suis..
Non je n'ai pas fait de vide autour de mon linteau.
Merci
Voila 2 screen, qui montre ou j'en suis..
Non je n'ai pas fait de vide autour de mon linteau.
Merci
MD
bonjour,
Personnellement je ferais une famille imbriquée (linteau) que je ferais venir dans ma fenêtre. Pour que cela marche il faut :
1- effectivement la faire venir dans une réservation dans le mur qui accueille la fenêtre
2- faire un passage de paramètres dans les propriétés du linteau pour lui dire qui reprend les paramètres de la largeur de la fenêtre
3 - cochez partagé pour le récupérer dans la nomenclature
voir etape dans le jpg
Personnellement je ferais une famille imbriquée (linteau) que je ferais venir dans ma fenêtre. Pour que cela marche il faut :
1- effectivement la faire venir dans une réservation dans le mur qui accueille la fenêtre
2- faire un passage de paramètres dans les propriétés du linteau pour lui dire qui reprend les paramètres de la largeur de la fenêtre
3 - cochez partagé pour le récupérer dans la nomenclature
voir etape dans le jpg
CK
il te faudrait apprendre un peu les fabrication de famille ;)
MA
+1 avec Christophe ;)
MA
Je confirme Mickaël que j'aurai besoin d'apprendre à fabriquer des familles. ;)
Christophe est ce que je peux abuser de ta gentillesse, je ne vois pas comment tu créer le linteau.
tu repars d'un autre fichier fenêtre?? ou tu le fait à partir du même.
Merci de ton aide.
Christophe est ce que je peux abuser de ta gentillesse, je ne vois pas comment tu créer le linteau.
tu repars d'un autre fichier fenêtre?? ou tu le fait à partir du même.
Merci de ton aide.
MD
j'enregistre le fichier fenêtre sous un nom puis j'enregistre de nouveau le même fichier sous le nom linteau.
je vire ce que j'ai fait pour la fenêtre et je réutilise les plans de référence et les paramétrés existants pour créer mon linteau. Une fois fait je charge mon linteau dans ma famille fenêtre et je verrouille mon linteau sur les plans de référence de ma fenêtre à l'endroit adéquat. Si on prend une porte simple elle est composée de familles imbriquées : un premier niveau panneau et dans le panneau à un deuxième niveau la poignée.
je vire ce que j'ai fait pour la fenêtre et je réutilise les plans de référence et les paramétrés existants pour créer mon linteau. Une fois fait je charge mon linteau dans ma famille fenêtre et je verrouille mon linteau sur les plans de référence de ma fenêtre à l'endroit adéquat. Si on prend une porte simple elle est composée de familles imbriquées : un premier niveau panneau et dans le panneau à un deuxième niveau la poignée.
CK
les fichiers
CK
CK
attention à la famille linteau, elle peut etre une famille ossature, mais dans aucun cas une famille imbriquée peut etre intégré à un modèle analytique pour sortir des calcul ;)
MA
je suis d'accord c'est la raison pour laquelle personnellement je préférais comme indiqué précédemment utiliser une poutre. A contrario si on fait uniquement du coffrage et que l'on n'utilise pas le modèle analytique ou que l'on ne cherche pas à exporter le modèle dans robot ou arche, à la rigueur pourquoi pas?
CK
tout à fait :)
MA
Bonjour à tous,
J’avais réalisé une famille qui ressemblait à celle de Christophe (idem pour une famille avec une allège), mais c’est vrai qu’il me semble plus pertinent d’avoir un objet ossature intégré à la famille.
Par contre j’avais essayé de réaliser une famille imbriquée avec une famille « poutre », mais je n’arrivais pas à contraindre/ou mettre en rapport la longueur de la poutre avec la largeur de l’ouverture. (Médéric a eu le même problème) Le paramètre de longueur est grisé et on ne peut pas l’exploiter et le mettre en relation avec le paramètre d’ouverture, et on ne peut pas contrainte non plus les extrémités de la poutre, cela provoque un conflit de contraintes….
Du coup si vous avez une astuce je suis preneur.
J’avais réalisé une famille qui ressemblait à celle de Christophe (idem pour une famille avec une allège), mais c’est vrai qu’il me semble plus pertinent d’avoir un objet ossature intégré à la famille.
Par contre j’avais essayé de réaliser une famille imbriquée avec une famille « poutre », mais je n’arrivais pas à contraindre/ou mettre en rapport la longueur de la poutre avec la largeur de l’ouverture. (Médéric a eu le même problème) Le paramètre de longueur est grisé et on ne peut pas l’exploiter et le mettre en relation avec le paramètre d’ouverture, et on ne peut pas contrainte non plus les extrémités de la poutre, cela provoque un conflit de contraintes….
Du coup si vous avez une astuce je suis preneur.
JB
Merci à tous pour votre aide, j'ai enfin réussi à créer ma famille.
Julien pour l'instant je réalise l'ouverture de la fenêtre (suivant les conseils de Christophe) puis je rajoute une poutre dans mon projet.
Julien pour l'instant je réalise l'ouverture de la fenêtre (suivant les conseils de Christophe) puis je rajoute une poutre dans mon projet.
MD
[i]Par contre j’avais essayé de réaliser une famille imbriquée avec une famille « poutre », mais je n’arrivais pas à contraindre/ou mettre en rapport la longueur de la poutre avec la largeur de l’ouverture. (Médéric a eu le même problème) Le paramètre de longueur est grisé et on ne peut pas l’exploiter et le mettre en relation avec le paramètre d’ouverture, et on ne peut pas contrainte non plus les extrémités de la poutre, cela provoque un conflit de contraintes…[/i].
En effet avec les nouveaux paramètres globaux on peut gérer le décalage en Z par rapport au niveau d'une dalle mais pas la longueur de la poutre. Il faudrait voir avec dynamo créer une routine.
En effet avec les nouveaux paramètres globaux on peut gérer le décalage en Z par rapport au niveau d'une dalle mais pas la longueur de la poutre. Il faudrait voir avec dynamo créer une routine.
CK
En effet avec les nouveaux paramètres globaux on peut manipuler et mettre en relation la longueur d'une poutre.
Par contre les paramètres globaux ne sont pas accessibles dans la création d'une famille....
Pour le positionnement en Z, on peut gérer ça "traditionnellement" en mettant en relation les altimétries d'extrémité avec par exemple un paramètre "hauteur linteau"....pour ça pas de problèmes, ça marche.
A voir du coté de dynamo
merci de la réponse
Par contre les paramètres globaux ne sont pas accessibles dans la création d'une famille....
Pour le positionnement en Z, on peut gérer ça "traditionnellement" en mettant en relation les altimétries d'extrémité avec par exemple un paramètre "hauteur linteau"....pour ça pas de problèmes, ça marche.
A voir du coté de dynamo
merci de la réponse
JB


