
8 étapes clés pour réussir un modèle structure Revit avec export Graitec Advance & Arche
Cet article a pour but de présenter la méthodologie de travail et les différents exports afin d’éviter les ressaisies d’informations. C’est une méthode que j’ai pu utiliser sur des bâtiments assez important que vous pouvez voir ci-dessous. Vous verrez ci-après les étapes clefs afin de pallier aux différents couacs pouvant survenir lors des différents exports.
Les logiciels utilisés dans cet exemple sont Revit 2015, Advance Design 2015 ou 2014 et Arche Ossature 2014.
1. Montage de la maquette.
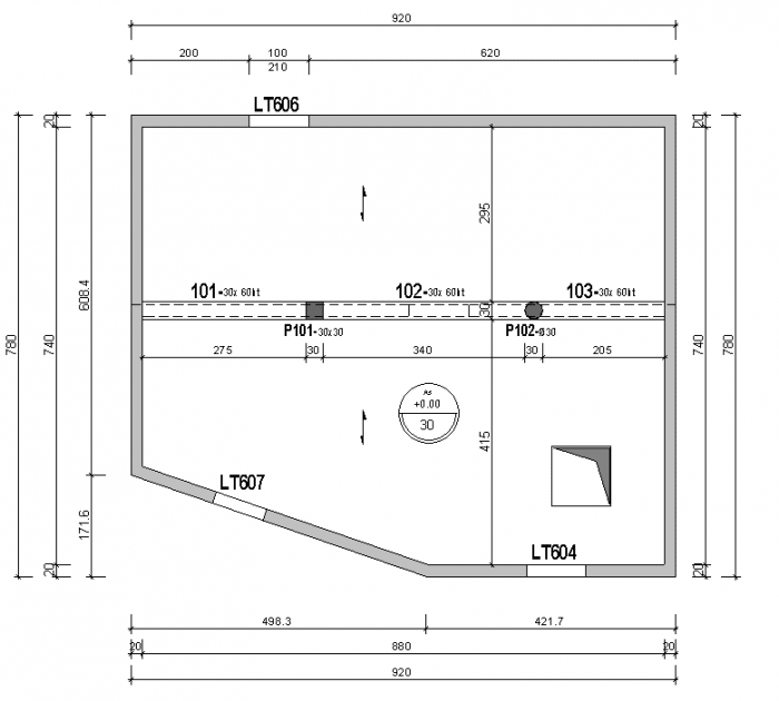
Cela revient à faire des fonds de plan structure. Il ne faut pas aller trop dans le détail de la modélisation, par exemple ne pas modéliser les petites réservations, les décaissés ou autre éléments n’ayant pas d’utilité pour le modèle structurel.
![]()
![]()
2. Vérification de la cohérence du modèle analytique
Généralement et pour les gros bâtiments, je vérifie le modèle analytique au cours de la modélisation afin d’éviter de reprendre trop de chose dans le cas ou Revit aurait mal géré le modèle analytique. Il est possible de ne pas prendre en compte une réservation ou une ouverture en la décochant après avoir cliqué sur l’icône ouverture de la fonction réglage analytique.
![]()
Cette partie est importante car cela permet de vérifier si tous les éléments sont bien attachés entre eux.
3. Chargement du bâtiment
Il est possible de le faire dans Revit ou alors dans le modèle de calcul suivant les préférences de chacun.
4. Création du fichier d'export au format GTC
Via le module BIMGraitec disponible en téléchargement http://www.graitec.com/fr/revit.asp
Afin d’exporter le modèle vers le logiciel de calcul, j’utilise le module Bim Connect de Graitec. Cela permet de créer un fichier GTC utilisable dans Advance Design.
Attention lors de l’export et pour des projets assez complexe, je préfère ne pas exporter les dalles car Advance n’arrive plus à les gérer correctement.
![]()
5. Export vers Advance Design
![]()
6. Création des niveaux dans Advance
Lors de l’export, les éléments ont étés classés par éléments et non par niveaux dans l’arborescence d’Advance, il faut donc les classer par niveau et cocher l’option niveau. Ceci permettra par la suite de faire correctement l’export vers Arche ossature.
7. Vérification du modèle de calcul et maillage.
![]()
8. Export vers Arche Ossature
Cet export s’effectue par l’intermédiaire du format GTC. Attention car lors de l’export, les charges sur les dalles disparaissent. Ne pas oublier de les insérer.
Pour conclure, c’est une méthodologie que j’utilise seulement en EXE, donc je n’ai pas étudié la possibilité de réinjecter les modifications dans Revit. Mais en général avec le double écran cela ne prend pas beaucoup de temps à faire.
J’ai fait le choix d’exporter systématiquement vers Advance car après avoir effectué les différents tests il s’avère que les exports vers Arche Ossature direct sont mal gérés. Voir ci-dessous le modèle de calcul dans le cas de l’export direct vers Arche Ossature et nous remarquons que cela n’est pas gérable.
![]()
Dans cet exemple, vous remarquerez que les voiles de l’étage n’ont pas été modélisés, et que les fondations sont à deux niveaux différents. Ceci n’est pas du tout exploitable dans le cas d’un grand bâtiment.
Cette méthodologie demande quelques manipulations, comme je le disais dans le début de cet article, elle fonctionne pour de gros projets. Cela me permet d’avoir un modèle de calcul très rapidement et sans avoir à ressaisir les informations. Nombreux de mes projets sont en zone sismiques et impose donc un modèle Advance Design pour l’analyse modale, c’est pourquoi j’ai choisi de passer par Advance Design pour exporter vers Arche Ossature afin d’obtenir la descente de charge classique.
Commentaires
merci d'avance.
siahmed.adel@gmail.com
bien cordialement
Je n'utilise pas encore les fonctionnalités analytique de Revit. Je considère que le modèle de calcul doit être un modèle simplifié du modèle de coffrage notamment pour avoir des résultats facilement interprétable et contrôlable manuellement.
Voici la méthodologie que j'utilise pas plus tard que cet après midi.
[list=1]
Modélisation du coffrage sous Revit
Export en IFC dans Arche Ossature
Ajustement des murs, poutres, poteaux
Je saisis les dalles et les chargement dans Arche
Je dimensionne mes éléments avec les modules Arche Ferraillage
Je mets à jour à la main le coffrage Revit
[/list]
Pour gagner du temps et gagner en ergonomie j'utilise à fond les raccourcis clavier :
[list]
Aligner : ALT + L
Coupe : ALT + C
Raccourcir et prolonger ALT + R
Etirer : ALT + T
[/list]
A mon avis le modèle analytique sous revit et la liaison bidirectionnel Revit - Advance ou Revit - Robot se prête bien au ossature métallique poteau poutre poutrelle car les schémas mécanique sont plus évidents.
Je reste à ta disposition pour échanger plus longuement sur le sujet.
CDT
J'aimerai savoir la démarche que vous avez adopté quant au renseignement du modèle analytique de REVIT, est ce que vous gérez les paramètres propres au calcul directement dans Advance comme nous avons l'habitude de le faire, si c'est le cas, l'export vous semble-t-il satisfaisant ? Ou alors renseignez vous le modèle analytique de REVIT ? Est ce qu'il y a un réel intérêt de compléter ce modèle directement sur REVIT?
Jérôme tu as un peu évoqué le sujet mais j'aimerai avoir plus de précisions.
Je réalise actuellement mon PFF sur l'approche du BIM dans mon BET structure et je m'intéresse à établir une démarche afin d'exploiter le modèle REVIT pour nos logiciels de calculs.
D'avance merci
Merci...
Perso je modélise mon modèle sous revit puis je créer un fichier IFC que jimporte dans arche. Ensuite j'ajuste mes murs puis créer mes dalles et le chargement. Sur de gros projet en EXE cela me fais gagner beaucoup de temps car finalement ce qui long sous arche c'est de saisir les murs.
pourriez-vous ajouté une capture d'écran svp ?
j'imagine le processus est moins délicat avec Robot !? Comment ça marche dans ce cas ?


