
GRAITEC BIM Designers 3D, ferraillage sous Revit #AU
15493
H
HEXABIM
Mise à jour le
J-3 avant le top départ de l'un des plus attendus événements de l'année, Autodesk University, à venir en Décembre à Las Vegas pour révéler pendant trois jours les dernières innovation dans le monde de l'AEC. La majorité des professionnels & éditeurs du domaine seront présents, y compris GRAITEC qui promet une solution très attendu, GRAITEC BIM Designers 3D !
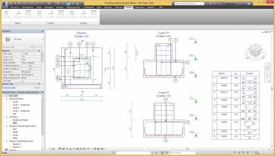
Enfin du ferraillage 2D/3D directement disponible sous Revit, une panoplie d'extensions dont en voici un extrait :
Cette session “SE6512- Take advantage of BIM for reinforced concrete structures“ sera présenté par Carl Spalding et Joseph PAIS, plusieurs thématiques seront abordées :
- Lancer des analyses structurelles directement sous Revit.
- Vérifier les hypothèses de calculs structurelles sous Revit toujours.
- Générer le ferraillage des différents éléments structuraux (poteaux, poutres et fondations)
- Visualiser et manipuler le ferraillage 3D directement sous Revit
- Et plein d'autres points.
Vous trouverez plus de détails dans le document officiel suivant :
Cet article n'est qu'un extrait du document officiel, N'hésitez pas à rejoindre la discussion si vous avez autres informations !
Commentaires
2 commentaires
Voir le plus utile
Vous avez déjà un compte? Connectez-vous maintenant
(Mise à jour: 06 juillet 2015)
Un contenu très clair, des explications relayées par des visuels... une très belle approche du bim et du rôle du BIM Manager : explicite, concis et précis.
SQ
(Mise à jour: 29 novembre 2014)
Cet article n'est qu'un extrait du document officiel, N'hésitez pas à rejoindre la discussion si vous avez autres informations !
H


