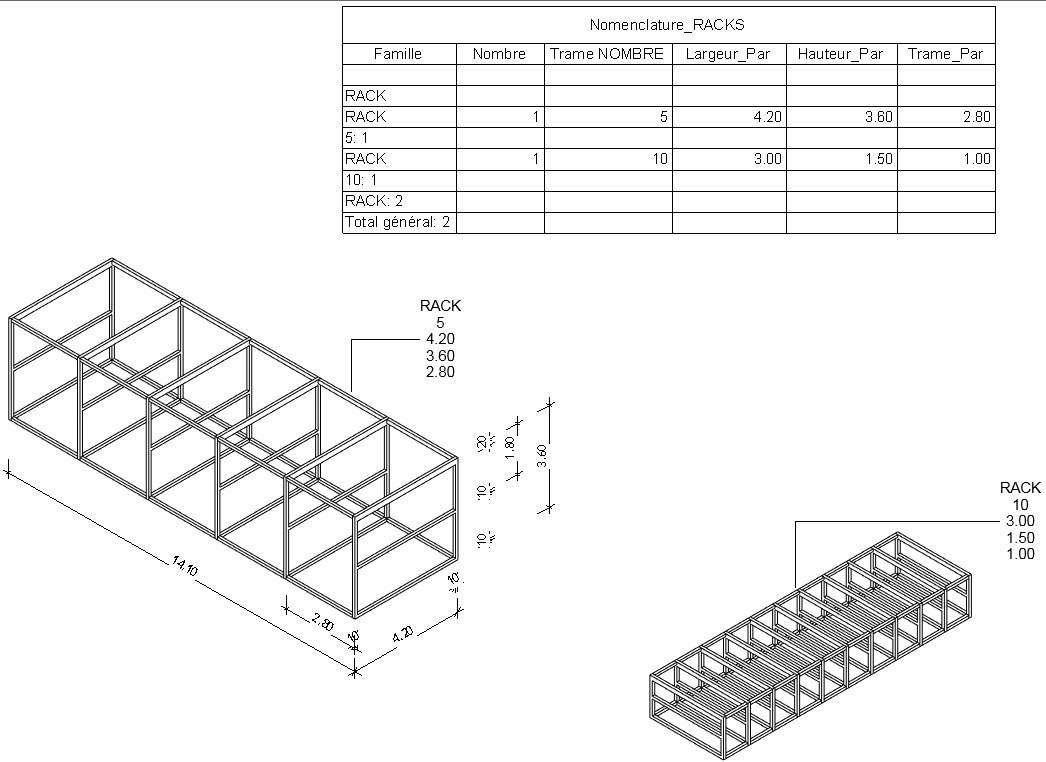
Rack de support de canalisations
CD
Christian Deymonnaz
15 octobre 2017
4222 0 1 2
Rack paramétrique de support de canalisations.
User comments
Commentaires d'utilisateurs non trouvés
Vous avez déjà un compte? Connectez-vous maintenant


