Faire du BIM avec SketchUP PRO
H
HEXABIM
20 juin 2015
37565 0 8 0
Réponses
Bonjour,
Merci d'avance pour cet ouvrage :-)
Merci d'avance pour cet ouvrage :-)
JM
Bonjour,
Lors des ateliers du Master BIM de l’ENPC nous avons présenté un projet en juin 2015 utilisant Sketchup pour faire du BIM.
Ce projet sur le travail en BIM alternatif et collaboratif a cherché à démontrer comment l’utilisation de certains outils de collaboration, d’échange et de modélisation pouvait permettre à la majorité des acteurs de la filière du bâtiment de développer une approche BIM tant en phase projet qu’en phase construction.
Pour atteindre cet objectif, nous nous sommes appuyé sur l’utilisation du logiciel de modélisation Sketchup (éditeur Trimble de taille comparable à Autodesk). Ce logiciel permet depuis sa version 2014 l’import/export de fichiers IFC, l’ensemble des maquettes des différents logiciels métiers ont pu ainsi être rassemblées afin d’échanger de manière collaborative et concourante entre acteurs utilisant d’autres outils de modélisation comme Revit.
Différents processus de validation ont été modélisés (BPMN) et testés pour assurer un workflow cohérent. L’usage de solutions grand public de stockage et travail collaboratif (Google Drive/Hanghout/Docs) a permis l’échange instantané des données tout en permettant un suivi et une analyse des requêtes et modifications. Pour assurer le contrôle des maquettes d’export et l’échange des demandes de modifications instantanément nous avons choisi d’utiliser, appuyé sur un espace de travail collaboratif cloud, le viewer IFC gratuit (Teckla BIMsight) couplé au format d’échange de note entre logiciel BIM et géolocalisée BCF afin de compléter cette solution d’interopérabilité à bas coût (“low cost BIM”).
Le principe de travail de l’équipe a été de toujours chercher à mettre en avant des solutions sur mesure et fiables avec des outils accessibles en coût et en usage dont évidement Sketchup. Le BIM pour tous !
La présentation est visible à l'adresse ci-dessous :
Lors des ateliers du Master BIM de l’ENPC nous avons présenté un projet en juin 2015 utilisant Sketchup pour faire du BIM.
Ce projet sur le travail en BIM alternatif et collaboratif a cherché à démontrer comment l’utilisation de certains outils de collaboration, d’échange et de modélisation pouvait permettre à la majorité des acteurs de la filière du bâtiment de développer une approche BIM tant en phase projet qu’en phase construction.
Pour atteindre cet objectif, nous nous sommes appuyé sur l’utilisation du logiciel de modélisation Sketchup (éditeur Trimble de taille comparable à Autodesk). Ce logiciel permet depuis sa version 2014 l’import/export de fichiers IFC, l’ensemble des maquettes des différents logiciels métiers ont pu ainsi être rassemblées afin d’échanger de manière collaborative et concourante entre acteurs utilisant d’autres outils de modélisation comme Revit.
Différents processus de validation ont été modélisés (BPMN) et testés pour assurer un workflow cohérent. L’usage de solutions grand public de stockage et travail collaboratif (Google Drive/Hanghout/Docs) a permis l’échange instantané des données tout en permettant un suivi et une analyse des requêtes et modifications. Pour assurer le contrôle des maquettes d’export et l’échange des demandes de modifications instantanément nous avons choisi d’utiliser, appuyé sur un espace de travail collaboratif cloud, le viewer IFC gratuit (Teckla BIMsight) couplé au format d’échange de note entre logiciel BIM et géolocalisée BCF afin de compléter cette solution d’interopérabilité à bas coût (“low cost BIM”).
Le principe de travail de l’équipe a été de toujours chercher à mettre en avant des solutions sur mesure et fiables avec des outils accessibles en coût et en usage dont évidement Sketchup. Le BIM pour tous !
La présentation est visible à l'adresse ci-dessous :
FM
Bonjour François,
Démarche très intéressante ! Je suis actuellement étudiant en mastère spécialisé management de projet de construction option BIM du CESI et je travaille dans une PME ou je vais être amené à développer le BIM notamment via SketchUpPo et d'autres outils collaboratifs.
J'aimerais savoir si tu as des documents, références ou autres qui pourraient m'être utiles et qui peuvent me permettre d'avancer dans ma démarche ?
Démarche très intéressante ! Je suis actuellement étudiant en mastère spécialisé management de projet de construction option BIM du CESI et je travaille dans une PME ou je vais être amené à développer le BIM notamment via SketchUpPo et d'autres outils collaboratifs.
J'aimerais savoir si tu as des documents, références ou autres qui pourraient m'être utiles et qui peuvent me permettre d'avancer dans ma démarche ?
BM
Pas spécialement, c'était plutôt des tests et pas beaucoup de ressource dispo sur Sketchup et le BIM.
On avait aussi fait ça : http://www.instructables.com/id/Sketchup-Revit-IFC/
Un plugin pas testé : https://extensions.sketchup.com/fr/content/simlab-ifc-importer-sketchup
Bonne continuation,
On avait aussi fait ça : http://www.instructables.com/id/Sketchup-Revit-IFC/
Un plugin pas testé : https://extensions.sketchup.com/fr/content/simlab-ifc-importer-sketchup
Bonne continuation,
FM
Salut François,
belle initiative !
belle initiative !
CA
Bonjour, je suis archi et j'utilise sketchup pro depuis 15 ans, je me suis abonné au plugin PLUSSPEC depuis deux ans.
Mes remarques sont les suivantes :
Plusspec transforme sketchup en une sorte d'archicad
Plusspec permet la classification automatique en IFC de chaque élément dessiné,
les exports sont parfaitement reconnus par les lecteurs IFC gratuit tel tecklabimsight par exemple.
Après cela, vous dire si Sketchup permet de faire "du vrai BIM" ?
je n' en ai pas les compétences, puisque je rencontre autant de definition du BIM qu'il y a d'acteurs qui ont tous une définition différente suivant leur positionnement dans la filière...
pour le moment le BIM avec sketchup, c'est limité aux IFC2x3, en tout cas les BET avec qui je bosse acceptent, sans broncher, mes fichiers IFC et bien entendu je leur livre aussi les DWG 2D et 3D et mème les PDF....
Plusspec est il indispensable pour livrer un IFC 2x3 : non, sketchup permet de le faire nativement, c'est juste un peu plus laborieux.
Plusspec et il opérationnel à 100% pour nos modes constructifs européens : il l'est à 90%, il a encore besoin de développement, mais ça avance régulièrement et les utilisateurs sont écoutés.
Plusspec est il l'avenir du BIM pour Sketchup : Puisque Trimble est très peu actif sur le développement de Sketchup, Plusspec est actuellement la seule solution valable professionnellement sur Sketchup pour dessiner paramétriquement un modèle IFC.
Sketchup gère t il la modélisation par maillage pour les formes complexes : et bien OUI , plusieurs plugin ultra performant et peu onéreux ont été développé et vous pouvez dessiné comme Zaha Hadid si le cœur vous en dit ! (voir yxxtube avec recherche sketchup complexe project)
Sketchup pro, quand on sait l'utiliser, permet de générer des plans, coupes et tous détails constructifs 2d/3d nécessaires à une phase PRO ou EXE, il n'y aucunement besoin de passer par un autre soft pour sorti du plan CAD avec sketchup, comme je l'entends souvent.
Sketchup pro est une vrai solution à cout maitrisé pour les indépendants ou les petites agences, il est parfaitement intégré au monde de l'archi aux US et en Asie, moins en Europe vu le lobbying important des grosses boites de CAD.
A mon avis Sketchup est totalement sous estimé et donc méconnu du monde du bureau d'études et des archis, qui le classent en simple logiciel d'esquisse...après cela dire qu'il est aussi performant qu'un archicad ou revit, je n'en sais rien, mais je vois beaucoup de confrères issus de ces deux soft revenir vers sketchup pour des raisons financières...
ah oui, au fait, Plusspec est développé par des gars qui ont fait du développement pour archicad, leur objectif : réunir le meilleur des deux mondes...
a+
Mes remarques sont les suivantes :
Plusspec transforme sketchup en une sorte d'archicad
Plusspec permet la classification automatique en IFC de chaque élément dessiné,
les exports sont parfaitement reconnus par les lecteurs IFC gratuit tel tecklabimsight par exemple.
Après cela, vous dire si Sketchup permet de faire "du vrai BIM" ?
je n' en ai pas les compétences, puisque je rencontre autant de definition du BIM qu'il y a d'acteurs qui ont tous une définition différente suivant leur positionnement dans la filière...
pour le moment le BIM avec sketchup, c'est limité aux IFC2x3, en tout cas les BET avec qui je bosse acceptent, sans broncher, mes fichiers IFC et bien entendu je leur livre aussi les DWG 2D et 3D et mème les PDF....
Plusspec est il indispensable pour livrer un IFC 2x3 : non, sketchup permet de le faire nativement, c'est juste un peu plus laborieux.
Plusspec et il opérationnel à 100% pour nos modes constructifs européens : il l'est à 90%, il a encore besoin de développement, mais ça avance régulièrement et les utilisateurs sont écoutés.
Plusspec est il l'avenir du BIM pour Sketchup : Puisque Trimble est très peu actif sur le développement de Sketchup, Plusspec est actuellement la seule solution valable professionnellement sur Sketchup pour dessiner paramétriquement un modèle IFC.
Sketchup gère t il la modélisation par maillage pour les formes complexes : et bien OUI , plusieurs plugin ultra performant et peu onéreux ont été développé et vous pouvez dessiné comme Zaha Hadid si le cœur vous en dit ! (voir yxxtube avec recherche sketchup complexe project)
Sketchup pro, quand on sait l'utiliser, permet de générer des plans, coupes et tous détails constructifs 2d/3d nécessaires à une phase PRO ou EXE, il n'y aucunement besoin de passer par un autre soft pour sorti du plan CAD avec sketchup, comme je l'entends souvent.
Sketchup pro est une vrai solution à cout maitrisé pour les indépendants ou les petites agences, il est parfaitement intégré au monde de l'archi aux US et en Asie, moins en Europe vu le lobbying important des grosses boites de CAD.
A mon avis Sketchup est totalement sous estimé et donc méconnu du monde du bureau d'études et des archis, qui le classent en simple logiciel d'esquisse...après cela dire qu'il est aussi performant qu'un archicad ou revit, je n'en sais rien, mais je vois beaucoup de confrères issus de ces deux soft revenir vers sketchup pour des raisons financières...
ah oui, au fait, Plusspec est développé par des gars qui ont fait du développement pour archicad, leur objectif : réunir le meilleur des deux mondes...
a+
LD
D'accord avec Laurent,
Sketchup est pour moi une vraie solution pour intégrer les petites sociétés (BET de 5 personnes par ex.) et les métiers "spécifiques" délaissés par les autres solutions logicielles (archi d'intérieur, agencement, menuisiers), à un processus BIM.
De plus, nativement, il possible de créer des composants dynamiques, qui, bien faits, feraient pâlir d'envie certains des Reviteux ! (avec de la donnée, j'en avais créés pas mal dans ma jeunesse ^^)
Il est également possible d'extraire des quantités et listings des éléments et attributs saisis dans ces composants.
En fait, sa puissance est souvent méconnue, donc reléguée à un outil d'amateurs, mais avec son code ouvert et sa communauté active qui a développé ces centaines de plug-ins, on arrive quasiment à tout faire aussi bien que les grands !
Quelques plug-ins que j'ai en tête :
Enfin, la prise en main est plus aisée mais surtout, il est bien meilleur marché. Pour la liste ci-dessus (sans 4D ni Plusspec) avec Sketchup Pro, on arrive en dessous des 600€/an.
Plus le BIM avance, plus le lobbying se fait sentir et plus il devient un truc de "gros" et risque de laisser derrière lui pas mal de petites boites sur le carreau (Revit c'est 3000/an/utilisateur + autant de formation + B360 docs + un BIMCollab avec ou autre, ça commence à faire de belles sommes).
Favorisons donc les échanges !!
Je vous laisse avec quelques images (également en liens)... Pour vous faire une idée plus précise !


A mon avis Sketchup est totalement sous estimé et donc méconnu du monde du bureau d'études et des archis, qui le classent en simple logiciel d'esquisse
Sketchup est pour moi une vraie solution pour intégrer les petites sociétés (BET de 5 personnes par ex.) et les métiers "spécifiques" délaissés par les autres solutions logicielles (archi d'intérieur, agencement, menuisiers), à un processus BIM.
De plus, nativement, il possible de créer des composants dynamiques, qui, bien faits, feraient pâlir d'envie certains des Reviteux ! (avec de la donnée, j'en avais créés pas mal dans ma jeunesse ^^)
Il est également possible d'extraire des quantités et listings des éléments et attributs saisis dans ces composants.
En fait, sa puissance est souvent méconnue, donc reléguée à un outil d'amateurs, mais avec son code ouvert et sa communauté active qui a développé ces centaines de plug-ins, on arrive quasiment à tout faire aussi bien que les grands !
Quelques plug-ins que j'ai en tête :
- Estimator, pour extraire des quantité et via un catalogue de coûts, sortir des prix.
- Skalp, pour l'aspect graphiques des coupes selon matériaux (les Reviteux ne regardent plus vos coupes SKP en vous pointant du doigt et en riant très fort).
- 4D virtual Builder, pour faire de la 4D dans Sketchup (oui monsieur ! un coucou à Laurent s'il me lit).
- Plusspec, déjà cité mais qui est vraiment complet
- D'autres qui crées profilés métalliques et canalisations avec raccords.
- Des centaines d'autres (gratuits !)
Enfin, la prise en main est plus aisée mais surtout, il est bien meilleur marché. Pour la liste ci-dessus (sans 4D ni Plusspec) avec Sketchup Pro, on arrive en dessous des 600€/an.
Plus le BIM avance, plus le lobbying se fait sentir et plus il devient un truc de "gros" et risque de laisser derrière lui pas mal de petites boites sur le carreau (Revit c'est 3000/an/utilisateur + autant de formation + B360 docs + un BIMCollab avec ou autre, ça commence à faire de belles sommes).
Favorisons donc les échanges !!
Je vous laisse avec quelques images (également en liens)... Pour vous faire une idée plus précise !
M
Suite au post précédent de Matthieu,
Dans le but de favoriser l'échange d'information,
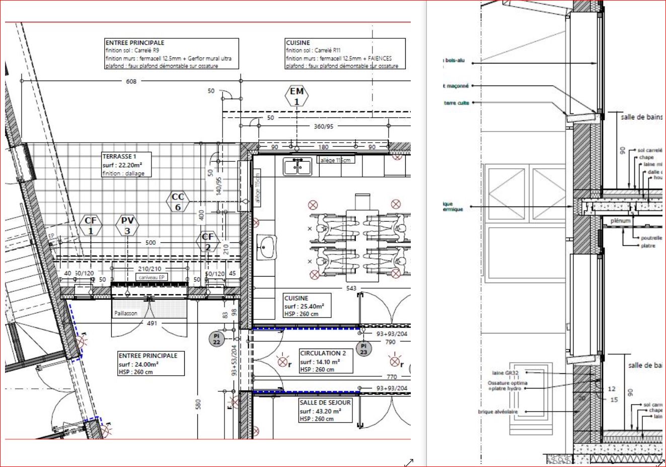
vous trouverez ci joint quelques copies d’écran de modélisation 3d ou de rendu CAD réalisés avec Plusspec sous Sketchup Pro, comprenant :
une vue extraite de ma bibliothèque de murs paramétrés sous Plusspec
un extrait de plan cad
un détail technique au 1/20
une vue d'un modèle IFC dessiné sous Sketchup+Pluspec ouvert avec le lecteur Tecklabimsight.
une vue d'un extrait de DQE réalisé avec Plusspec.
bonne découverte



Dans le but de favoriser l'échange d'information,
vous trouverez ci joint quelques copies d’écran de modélisation 3d ou de rendu CAD réalisés avec Plusspec sous Sketchup Pro, comprenant :
une vue extraite de ma bibliothèque de murs paramétrés sous Plusspec
un extrait de plan cad
un détail technique au 1/20
une vue d'un modèle IFC dessiné sous Sketchup+Pluspec ouvert avec le lecteur Tecklabimsight.
une vue d'un extrait de DQE réalisé avec Plusspec.
bonne découverte
LD
Oui !
CA
J'ai testé sketchup, Sketchup travaille bien en unités exactes
J'utilise, depuis ± 4 mois une ablette graphique dessin xp-pen deco 03 avec sketchup .
Avec Sketchup: souris à gauche toujours pr zoomer et bouton stylet pr "Orbit" et "Pan" (selon que l'on glisse en touchant la tablette ou en la survolant à ± 3mm de la surface). Très fluide. L'objet dessiné se manipule très bien.
J'utilise, depuis ± 4 mois une ablette graphique dessin xp-pen deco 03 avec sketchup .
Avec Sketchup: souris à gauche toujours pr zoomer et bouton stylet pr "Orbit" et "Pan" (selon que l'on glisse en touchant la tablette ou en la survolant à ± 3mm de la surface). Très fluide. L'objet dessiné se manipule très bien.
ZY
Bonjour à tous
SVP, qu'est-ce que le triangle des contraires , que signifie VDC ?
D'avance merci.
@ plus
Sefaira est super pour..., à l’élaboration des matériaux et on ne peut pas y appliquer le triangle des contraires, par exemple. Donc, du VDC, pas du BIM.
On fait le tri et on choisit !
SVP, qu'est-ce que le triangle des contraires , que signifie VDC ?
D'avance merci.
@ plus
FL
Sketchup est connecté à l’intégralité des banques de modèle BIM.
Ainsi l’utilisateur Sketchup peut télécharger les modèles IFC des catalogues fabricants.
Sketchup est aussi intégré nativement aux plateformes collaborative BIM comme par exemple TRIMBLE Connect ou en IFC.
Pour un constructeur de maisons individuelles, il paraît plus intéressant d’utiliser une extension de Sketchup. Plusieurs éditeurs d’extensions proposent des solutions permettant d’automatiser la saisie BIM.
Je viens de commencer mes études dans le domaine du BTP en vue d'être architecte ou maitre-d'oeuvre. Personnellement cela fait plus de 10 ans que je n’utilise plus que des tablettes. Je suis actuellement avec une Deco Pro de XP-Pen pour un iMac 27" et j’en suis très satisfait.
Ainsi l’utilisateur Sketchup peut télécharger les modèles IFC des catalogues fabricants.
Sketchup est aussi intégré nativement aux plateformes collaborative BIM comme par exemple TRIMBLE Connect ou en IFC.
Pour un constructeur de maisons individuelles, il paraît plus intéressant d’utiliser une extension de Sketchup. Plusieurs éditeurs d’extensions proposent des solutions permettant d’automatiser la saisie BIM.
Je viens de commencer mes études dans le domaine du BTP en vue d'être architecte ou maitre-d'oeuvre. Personnellement cela fait plus de 10 ans que je n’utilise plus que des tablettes. Je suis actuellement avec une Deco Pro de XP-Pen pour un iMac 27" et j’en suis très satisfait.
H
Très bon info ! Merci à vous !
H
Bonjour. Suite à des échange avec une personne que j'ai formé au BIM il y a quelques années,
nous avons trouvés ensemble un workflow pour quantifier des éléments de toitures :
Autocad => SketchUp 2020 puis SketchUp 2020 => .ifc puis .ifc => BIM Vision pour quantitatifs,
sachant que le but de ce post c'est de continuer à faire arriver le BIM même sur des projets
gérés par des TPE PME type réhabilitation du dernier niveau d'un logement pour agrandir ce dernier,
détail du projet en cours d'étude voir lien ci dessous car impossible d'ajouter le fichier .ifc :
https://viewer.autodesk.com/id/dXJuOmFkc2sub2JqZWN0czpvcy5vYmplY3Q6YTM2MHZpZXdlci90MTYxMDcwMzk5NDEzNF8wMDU3OTM2MjUwNzQ3MTEwODRfMTYxMDcwMzk5NDI2Ny5pZmM?sheetId=ZTUzNDcyMDMtNTJlOS00MmYwLWI3MGMtODczNzIzYTgzZmQ5
nous avons trouvés ensemble un workflow pour quantifier des éléments de toitures :
Autocad => SketchUp 2020 puis SketchUp 2020 => .ifc puis .ifc => BIM Vision pour quantitatifs,
sachant que le but de ce post c'est de continuer à faire arriver le BIM même sur des projets
gérés par des TPE PME type réhabilitation du dernier niveau d'un logement pour agrandir ce dernier,
détail du projet en cours d'étude voir lien ci dessous car impossible d'ajouter le fichier .ifc :
https://viewer.autodesk.com/id/dXJuOmFkc2sub2JqZWN0czpvcy5vYmplY3Q6YTM2MHZpZXdlci90MTYxMDcwMzk5NDEzNF8wMDU3OTM2MjUwNzQ3MTEwODRfMTYxMDcwMzk5NDI2Ny5pZmM?sheetId=ZTUzNDcyMDMtNTJlOS00MmYwLWI3MGMtODczNzIzYTgzZmQ5
VV
Bonjour,
Presque tout a été dit sur la notion de BIM par Sketchup qui n'est pas un logiciel paramétrique et dynamique.
Je complète par une image. A mon sens, un logiciel de modélisation dans une démarche BIM doit être :
- paramétrique ;
- dynamique ;
- doit intégrer le comportement (relation entre objets ...)
Sketchup ne correspond pas à cette définition. C'est un logiciel de 3D performant uniquement (c'est bien aussi)
Presque tout a été dit sur la notion de BIM par Sketchup qui n'est pas un logiciel paramétrique et dynamique.
Je complète par une image. A mon sens, un logiciel de modélisation dans une démarche BIM doit être :
- paramétrique ;
- dynamique ;
- doit intégrer le comportement (relation entre objets ...)
Sketchup ne correspond pas à cette définition. C'est un logiciel de 3D performant uniquement (c'est bien aussi)
DL
Bonjour Damien,
je souhaite réagir à votre post qui me semble intéressante. Ceci-dit, le BIM c'est pas le logiciel de modélisation, il va au delà de cela et je pense que je ne vous apprend rien en disant cela. L'expérience du BIM nous a montré que la part logiciel reste importante dans le BIM même si une partie seulement concerne la modélisation. Dans la partie modélisation là aussi il y a différents type de modélisations e différents types de logiciels qui peuvent être utilisés.
Si je reviens sur SketchUp, ce dernier est un outil de modélisation puissant comme vous l'avez dit. De plus il est "paramétrique". par le biais des plugins mais sachez qu'il existe une extension permettant même de faire de la modélisation paramétrique avec SketchUp et qui est presque équivalente de Dynamo sur Revit. Pour le dynamisme là aussi une connaissance approfondie du logiciel permet de voir à quel point il peut l'être comme pour l'intégration des relations entre les objets.
Concernant les dimensions du BIM, j'ai eu l'occasion, au delà de la 2D et de la 3D de faire de la 4D, de la 5D avec SketchUp. Pour les autres dimensions je ne l'ai pas pratiqué personnellement mais je sais qu'il peut en faire.
J'ai eu l'occasion aussi de former des bureaux d'architecture sur SKetchUp pour le BIM et intégrer pour eu des outils pour travailler sur des sans 3D et de la VR/AR et les dimensions du BIM. Aucun d'entre eu n'imaginait que SketchUp était capable de faire tout cela et ont décidé de rester sur ce logiciel et ne pas en prendre d'autres pour intégrer des processus BIM.
Les nouvelles technologies ne sont plus accrochés à de grands logiciels mais a une somme d'applications répondant aux attentes métiers et SketchUp de ce point de vue ce place très bien par son ouverture au développement d'une part du codage en interne et son ouverture à énormément d'applications en périphérie.
Bien à vous et que le BIM soit avec vous.
je souhaite réagir à votre post qui me semble intéressante. Ceci-dit, le BIM c'est pas le logiciel de modélisation, il va au delà de cela et je pense que je ne vous apprend rien en disant cela. L'expérience du BIM nous a montré que la part logiciel reste importante dans le BIM même si une partie seulement concerne la modélisation. Dans la partie modélisation là aussi il y a différents type de modélisations e différents types de logiciels qui peuvent être utilisés.
Si je reviens sur SketchUp, ce dernier est un outil de modélisation puissant comme vous l'avez dit. De plus il est "paramétrique". par le biais des plugins mais sachez qu'il existe une extension permettant même de faire de la modélisation paramétrique avec SketchUp et qui est presque équivalente de Dynamo sur Revit. Pour le dynamisme là aussi une connaissance approfondie du logiciel permet de voir à quel point il peut l'être comme pour l'intégration des relations entre les objets.
Concernant les dimensions du BIM, j'ai eu l'occasion, au delà de la 2D et de la 3D de faire de la 4D, de la 5D avec SketchUp. Pour les autres dimensions je ne l'ai pas pratiqué personnellement mais je sais qu'il peut en faire.
J'ai eu l'occasion aussi de former des bureaux d'architecture sur SKetchUp pour le BIM et intégrer pour eu des outils pour travailler sur des sans 3D et de la VR/AR et les dimensions du BIM. Aucun d'entre eu n'imaginait que SketchUp était capable de faire tout cela et ont décidé de rester sur ce logiciel et ne pas en prendre d'autres pour intégrer des processus BIM.
Les nouvelles technologies ne sont plus accrochés à de grands logiciels mais a une somme d'applications répondant aux attentes métiers et SketchUp de ce point de vue ce place très bien par son ouverture au développement d'une part du codage en interne et son ouverture à énormément d'applications en périphérie.
Bien à vous et que le BIM soit avec vous.
AB
Damien, Sketchup peut tout a fait faire du paramétrique, (cf. composants dynamiques, mon post plus haut), et pour certaines fonctions, dynamique.
De plus, est-ce vraiment définir le BIM que de dire que la modélisation doit être obligatoirement paramétrique ?
C'est définir à mon sens une manière de modéliser, pas le contenu des objets, et donc, le contenu BIM à proprement parlé.
Sketchup est plus qu'un logiciel 3D, même s'il ne propose pas toutes les fonctions que d'autres peuvent proposer, il en a dans le bide, et son relègue au rang de logiciel "3D juste pour rigoler" vient à mon sens de la méconnaissance sur ce qu'il peut vraiment proposer.
La relecture complète des échanges le démontre plutôt bien.
De plus, est-ce vraiment définir le BIM que de dire que la modélisation doit être obligatoirement paramétrique ?
C'est définir à mon sens une manière de modéliser, pas le contenu des objets, et donc, le contenu BIM à proprement parlé.
Sketchup est plus qu'un logiciel 3D, même s'il ne propose pas toutes les fonctions que d'autres peuvent proposer, il en a dans le bide, et son relègue au rang de logiciel "3D juste pour rigoler" vient à mon sens de la méconnaissance sur ce qu'il peut vraiment proposer.
La relecture complète des échanges le démontre plutôt bien.
M


