Plan de repérage peinture
PB
Pierre BENEZETH
01 novembre 2023
2466 0 1 0
Bonjour à toutes et à tous,
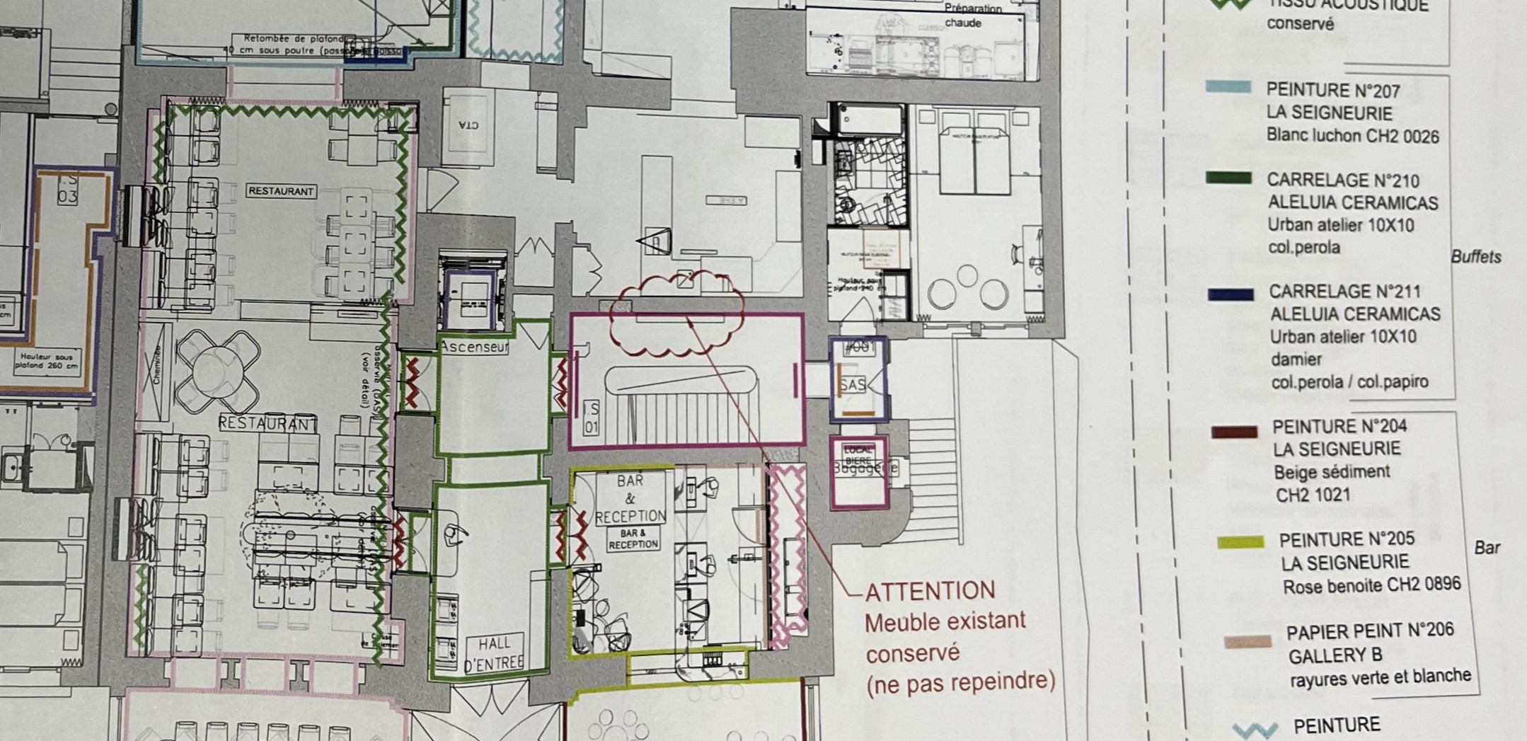
Je cherche désespérément à générer un gabarit de vue me permettant de réaliser un plan de repérage pour les revêtements de murs (peinture, faïence)
J'ai vu une solution en passant par la fonction pièce, mais c'est un revêtement pour tous les murs de la pièces apparemment.
En fait, je cherche à reproduire exactement ce que je vois souvent sur des grands projets qualitatifs.
Auriez vous des conseils svp ?
A bientôt,
Pierre.
Je cherche désespérément à générer un gabarit de vue me permettant de réaliser un plan de repérage pour les revêtements de murs (peinture, faïence)
J'ai vu une solution en passant par la fonction pièce, mais c'est un revêtement pour tous les murs de la pièces apparemment.
En fait, je cherche à reproduire exactement ce que je vois souvent sur des grands projets qualitatifs.
Auriez vous des conseils svp ?
A bientôt,
Pierre.
Réponses
Bonjour Pierre,
Si tu cherches à créer un plan de repérage (avec en prime les hauteur de faïence et pourquoi pas un métré pièce par pièce) la solution la plus fiable reste de modéliser ta faïence avec l'outil mur.
Les pièces renvoient effectivement uniquement le périmètre donc il n'y a,à ma connaissance, pas de solution miracle.
Raphaël
Si tu cherches à créer un plan de repérage (avec en prime les hauteur de faïence et pourquoi pas un métré pièce par pièce) la solution la plus fiable reste de modéliser ta faïence avec l'outil mur.
Les pièces renvoient effectivement uniquement le périmètre donc il n'y a,à ma connaissance, pas de solution miracle.
Raphaël
RG
Bonjour Raphael,
Merci pour ton aide.
Une fois les revêtements modélisés depuis l'outil "Mur", comment réaliser automatiquement leur repérage ?
Merci pour ton aide.
Une fois les revêtements modélisés depuis l'outil "Mur", comment réaliser automatiquement leur repérage ?
PB
Salut,
Commence par nous dire quel est ton logiciel.
Yo.
Commence par nous dire quel est ton logiciel.
Yo.
YP
Quelques indices font penser qu'il est sur Revit.
Je te laisse lire la section filtre de l'aide Revit. Ton repérage va consister à affecter des filtres à tes vues. Les filtres étant basés sur les valeurs qu'un paramètre va prendre, soit un paramètre par défaut (comme commentaire), soit un paramètre créé spécifiquement pour l'occasion. Préfères la deuxième option.
Raphaël
Je te laisse lire la section filtre de l'aide Revit. Ton repérage va consister à affecter des filtres à tes vues. Les filtres étant basés sur les valeurs qu'un paramètre va prendre, soit un paramètre par défaut (comme commentaire), soit un paramètre créé spécifiquement pour l'occasion. Préfères la deuxième option.
Raphaël
RG
Bonjour Raphael,
Bonjour Yohann,
Effectivement je suis sur REVIT !
Et merci Raphael pour tes indications. Je vous ferai un retour dès que j'aurais pu le tester.
Merci encore et à bientôt.
Bonjour Yohann,
Effectivement je suis sur REVIT !
Et merci Raphael pour tes indications. Je vous ferai un retour dès que j'aurais pu le tester.
Merci encore et à bientôt.
PB


