Caniveau sur sol
T
Thomas
03 juillet 2021
4607 0 4 0
Bonjour à tous,
je souhaiterai créer une famille de caniveau à implanter sur un sol via des lignes de modèle, et incluant plusieurs paramètres géométriques (largeur utile, hauteur utile, épaisseur, etc.).
Malheureusement je suis débutant et je n'arrive pas au bout de la démarche.
Voici comment j'ai procédé :
Je pensais que l'extrusion de vide s'appliquerai à tous les autres éléments de la maquette intercepté par le caniveau, mais ce n'est pas le cas.
Comment feriez-vous pour avoir à la fois l'extrusion du caniveau et l'extrusion du vide de l'élément porteur via une famille d'élément ?
L'idée étant de réaliser cette opération en une seule manipulation au lieu de créer un bord de dalle via mon profil en travers puis une ouverture.
Par ailleurs, comment faire pour utiliser les paramètres partagés du profil en travers du caniveau dans cette famille ?
Je m'excuse pour les erreurs hautement probable de terminologie et vous remercie par avance pour votre aide.
Thomas
je souhaiterai créer une famille de caniveau à implanter sur un sol via des lignes de modèle, et incluant plusieurs paramètres géométriques (largeur utile, hauteur utile, épaisseur, etc.).
Malheureusement je suis débutant et je n'arrive pas au bout de la démarche.
Voici comment j'ai procédé :
- Création d'un profil métrique correspondant à la section en travers du caniveau en paramétrant les différentes côtes via des paramètres partagés
- Création d'une famille générique métrique (ligne) incluant une extrusion par chemin de la section en travers précédente, le chemin étant la ligne de référence,
- J'ajoute également une extrusion du vide par chemin (toujours sur la ligne de référence) en choisissant un profil verrouillé sur le rectangle dans lequel s'inscrit le caniveau et en spécifiant "Ne pas couper la géométrie" de mon caniveau
Je pensais que l'extrusion de vide s'appliquerai à tous les autres éléments de la maquette intercepté par le caniveau, mais ce n'est pas le cas.
Comment feriez-vous pour avoir à la fois l'extrusion du caniveau et l'extrusion du vide de l'élément porteur via une famille d'élément ?
L'idée étant de réaliser cette opération en une seule manipulation au lieu de créer un bord de dalle via mon profil en travers puis une ouverture.
Par ailleurs, comment faire pour utiliser les paramètres partagés du profil en travers du caniveau dans cette famille ?
Je m'excuse pour les erreurs hautement probable de terminologie et vous remercie par avance pour votre aide.
Thomas
Réponses
Bonjour Thomas,
Je pense qu'il y a 2 solutions a votre problème:
_Soit faire une famille
> J'ai fais un tuto pour la création d'un dalot qui suit la pente du terrain > https://revit-memo.blogspot.com/2018/04/revit-2018dalotcadre-parametrique.html
_Soit faire une famille adaptative
> J'ai fais 2 tutos sur des sujets semblables >
_Extrusion sans roulis sur chemin d'extrusion https://revit-memo.blogspot.com/2020/02/revit-2020extrusion-3dsans-roulis.html
https://www.hexabim.com/composants-bim/extrusion-3d-de-type-tunnel-avec-maintien-de-l-horizontalit%C3%A9-et-de-la-verticalit%C3%A9-en-section-courante
_Viaduc : les voussoirs s'extrudent le long de l'axe du viaduc https://revit-memo.blogspot.com/2020/03/revit-2020dynamoexceletude-de.html
https://www.hexabim.com/composants-bim/revit_dynamo_excel_etude-de-faisabilit%C3%A9-d-un-viaduc
Bon courage
Christian
Je pense qu'il y a 2 solutions a votre problème:
_Soit faire une famille
> J'ai fais un tuto pour la création d'un dalot qui suit la pente du terrain > https://revit-memo.blogspot.com/2018/04/revit-2018dalotcadre-parametrique.html
_Soit faire une famille adaptative
> J'ai fais 2 tutos sur des sujets semblables >
_Extrusion sans roulis sur chemin d'extrusion https://revit-memo.blogspot.com/2020/02/revit-2020extrusion-3dsans-roulis.html
https://www.hexabim.com/composants-bim/extrusion-3d-de-type-tunnel-avec-maintien-de-l-horizontalit%C3%A9-et-de-la-verticalit%C3%A9-en-section-courante
_Viaduc : les voussoirs s'extrudent le long de l'axe du viaduc https://revit-memo.blogspot.com/2020/03/revit-2020dynamoexceletude-de.html
https://www.hexabim.com/composants-bim/revit_dynamo_excel_etude-de-faisabilit%C3%A9-d-un-viaduc
Bon courage
Christian
CD
Bonjour Christian,
merci pour ce retour rapide.
Malheureusement, sauf si je n'ai pas compris, tu n'utilises ni d'élément de profil 2D ni d'extrusion de forme vide.
Dans mon cas, le caniveau s'insère dans un sol ou un radier, je dois donc ajouter un vide en plus de son extrusion pour permettre de l'implanter, ce que je n'arrive pas à faire.
Si je fais le parallèle avec une porte, je dois faire une extrusion de vide ou une ouverture dans le voile pour insérer l'élément porte. Ici, la porte est remplacée par un caniveau en U et le voile par un élément sol ou radier.
Thomas
merci pour ce retour rapide.
Malheureusement, sauf si je n'ai pas compris, tu n'utilises ni d'élément de profil 2D ni d'extrusion de forme vide.
Dans mon cas, le caniveau s'insère dans un sol ou un radier, je dois donc ajouter un vide en plus de son extrusion pour permettre de l'implanter, ce que je n'arrive pas à faire.
Si je fais le parallèle avec une porte, je dois faire une extrusion de vide ou une ouverture dans le voile pour insérer l'élément porte. Ici, la porte est remplacée par un caniveau en U et le voile par un élément sol ou radier.
Thomas
T
Bonjour thomas,
La première idée qui me viens à l'esprit, as-tu coché la case "Couper avec des vides une fois chargée" dans les propriétés de la famille ?
C'est justement cette option qui permet de dire au vide de découper le sol dans un projet.
Pour les propriétés partagées, je ne saisi pas trop ta question ?
Cordialement,
Christophe
La première idée qui me viens à l'esprit, as-tu coché la case "Couper avec des vides une fois chargée" dans les propriétés de la famille ?
C'est justement cette option qui permet de dire au vide de découper le sol dans un projet.
Pour les propriétés partagées, je ne saisi pas trop ta question ?
Cordialement,
Christophe
CR
Bonjour Christophe,
oui, la case "Couper avec des vides une fois chargée" est bien cochée.
Lorsque j'insère mon élément de la famille Caniveau sur mon radier, je suis obligé de faire une 2ième manipulation pour "Couper la géométrie" du radier, est-ce normal ? Cela ne devrait-il pas se faire automatiquement ?
Concernant les paramètres partagés, je souhaiterais pouvoir modifier les paramètres géométriques de mon profil de caniveau sachant que j'utilise une famille imbriquée de profil.
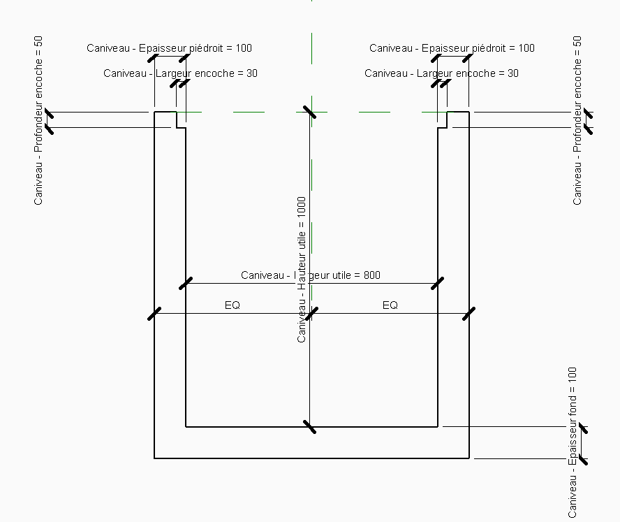
J'ai commencé par créer une famille Profil métrique correspondant à la coupe transversale du caniveau. Elle intègre plusieurs paramètres géométriques (voir pièce jointe) définis comme paramètres partagés.
Je l'ai chargé dans mon modèle générique métrique (ligne) correspondant à ma famille Caniveau pour me permettre de faire une extrusion basée sur ce profil, malheureusement je n'arrive pas à conserver le caractère paramétrable de la géométrie.
Bien cordialement,
Thomas
oui, la case "Couper avec des vides une fois chargée" est bien cochée.
Lorsque j'insère mon élément de la famille Caniveau sur mon radier, je suis obligé de faire une 2ième manipulation pour "Couper la géométrie" du radier, est-ce normal ? Cela ne devrait-il pas se faire automatiquement ?
Concernant les paramètres partagés, je souhaiterais pouvoir modifier les paramètres géométriques de mon profil de caniveau sachant que j'utilise une famille imbriquée de profil.
J'ai commencé par créer une famille Profil métrique correspondant à la coupe transversale du caniveau. Elle intègre plusieurs paramètres géométriques (voir pièce jointe) définis comme paramètres partagés.
Je l'ai chargé dans mon modèle générique métrique (ligne) correspondant à ma famille Caniveau pour me permettre de faire une extrusion basée sur ce profil, malheureusement je n'arrive pas à conserver le caractère paramétrable de la géométrie.
Bien cordialement,
Thomas
T
oui, la case "Couper avec des vides une fois chargée" est bien cochée.
Lorsque j'insère mon élément de la famille Caniveau sur mon radier, je suis obligé de faire une 2ième manipulation pour "Couper la géométrie" du radier, est-ce normal ? Cela ne devrait-il pas se faire automatiquement ?
Je viens de relire, le début de ta problématique. Pour répondre à ta question, oui c'est normal. Pour que cela soit automatique, il aurait fallu partir du gabarit "modèle générique métrique (face)".
En utilisant ce type de gabarit, la famille utilise la propriété "hôte" et au moment de l'insertion, tu es obligé de placer ton caniveau sur une face d'un sol, il le détecte et peux le couper. Ce que le gabarit classique ne fait pas.
ci joint un exemple visuel, je n'ai fait qu'insérer les 2 familles, pas de modification du sol :
Pour la 2e question, j'ai rencontré le même problème pour modéliser des chambres de tirages. Finalement, j'ai abandonné l'option de profil paramétrable dans des familles imbriqués car tu ne peux paramétrer le profil.
par exemple, dans mon cas, tu ne peux modifier le type de profil dans les fonctions d'extrusion :
Pour faire un caniveau paramétrable, il faut plutôt modéliser le profil dans la fonction extrusion avec les côtes paramétrables.
Par ailleurs, est-ce pertinent de tout mettre en paramètres partagées ?
Cordialement,
--
Christophe Rosé
Chargé d'études BIM - CERIB
CR
Merci Christophe pour tes réponses qui me sont fort utile.
Sauf erreur, l'application d'un modèle générique par face m'oblige à fixer la longueur et la direction de mon caniveau or je souhaitais pouvoir l'appliquer à un tracé quelconque.
J'en déduit que il vaut mieux rester sur une modèle générique par ligne et faire une 2ième manipulation pour couper la géométrie.
Ok pour les profils imbriqués, j'arrive à la même conclusion que toi sur le fait de devoir le modéliser dans ma famille générique caniveau.
Je trouve çà dommage de pas pouvoir utiliser des profils imbriqués paramétrables.
Bonne journée
Sauf erreur, l'application d'un modèle générique par face m'oblige à fixer la longueur et la direction de mon caniveau or je souhaitais pouvoir l'appliquer à un tracé quelconque.
J'en déduit que il vaut mieux rester sur une modèle générique par ligne et faire une 2ième manipulation pour couper la géométrie.
Ok pour les profils imbriqués, j'arrive à la même conclusion que toi sur le fait de devoir le modéliser dans ma famille générique caniveau.
Je trouve çà dommage de pas pouvoir utiliser des profils imbriqués paramétrables.
Bonne journée
T
Sauf erreur, l'application d'un modèle générique par face m'oblige à fixer la longueur et la direction de mon caniveau or je souhaitais pouvoir l'appliquer à un tracé quelconque.
J'en déduit que il vaut mieux rester sur une modèle générique par ligne et faire une 2ième manipulation pour couper la géométrie.
Rien n'interdit, dans un modèle générique métrique (face), de rajouter une ligne de référence avec un paramètre longueur (réglé en occurrence)
CR


